


Вид со двора



Генплан
1. 2-х этажный реконструируемый жилой дом. 2. Хоз. постройка существующая: баня. хоз. постройка существующая: гараж. 2-х этажный существующий жилой дом

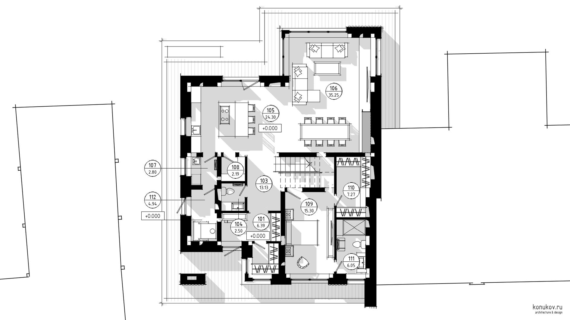
План 1 эт. 1 эт.
101 Тамбур 6.4 кв.м. 102 Гардеробная 3.0 кв.м. 103 Холл 13.1 кв.м. 104 Туалет 2.5 кв.м. 105 Кухня 24.3 кв.м. 106 Балкон 35.3 кв.м. 107 Кладовая 2.8 кв.м. 108 Холодная кладовая 2.2 кв.м. 109 Мастер-спальня 15.3 кв.м. 110 Гардеробная 7.3 кв.м. 111 Ванная 6.0 кв.м. 112 Балкон 4.9 кв.м.

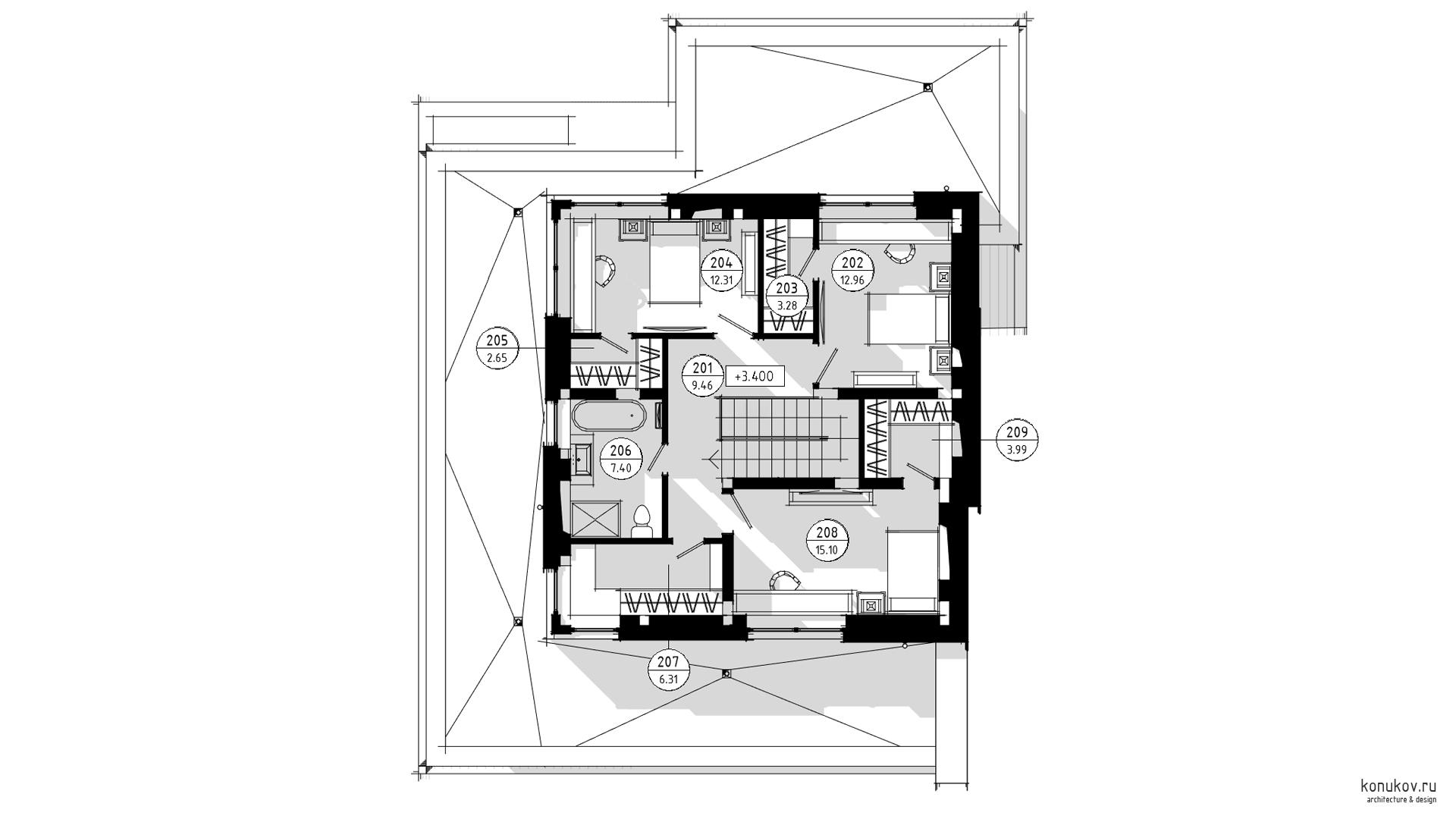
План 2 эт. 2 эт.
201 Холл 9.5 кв.м. 202 Спальня 13.0 кв.м. 203 Гардеробная 3.3 кв.м. 204 Спальня 12.3 кв.м. 205 Гардеробная 2.7 кв.м. 206 Ванная 7.4 кв.м. 207 Кладовая 6.3 кв.м. 208 Спальня 15.1 кв.м. 209 Гардеробная 4.0 кв.м.

Изометрия северо-западная

Изометрия северо-восточная

Разрез 1-1

Разрез 2-2

Фасад 3

Фасад 4

Фасад 1

Фасад 2
