


Генплан
Пятно застройки смещено на южную сторону участка. Чтобы образовать внутренний дворик с существующими постройками.1. Вновь возводимый жилой дом. Гараж. Хозяйственная постройка

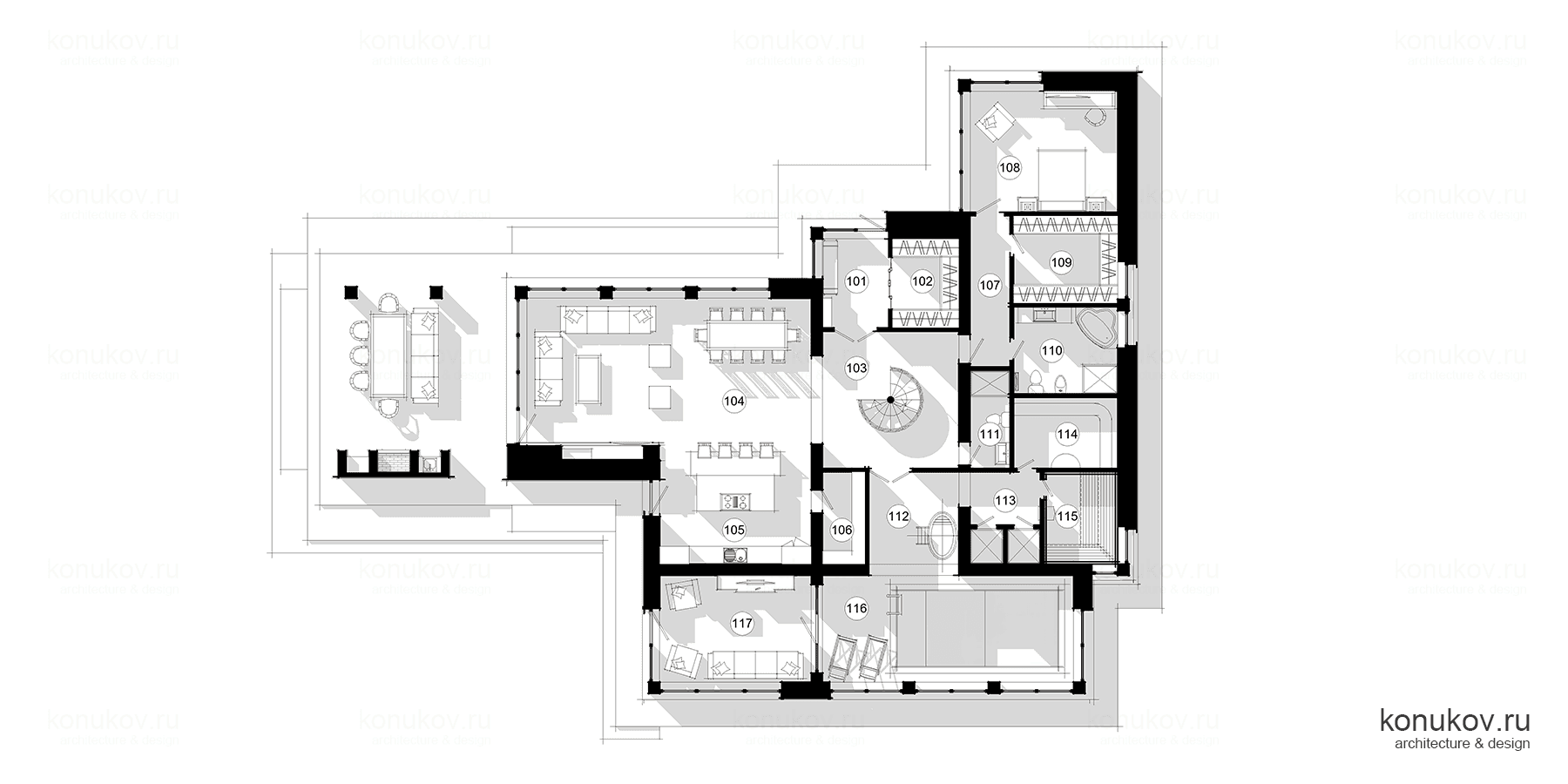
План

План

План

Изометрия

Изометрия

Разрез

Разрез

Фасад

Фасад

Фасад

Фасад

