










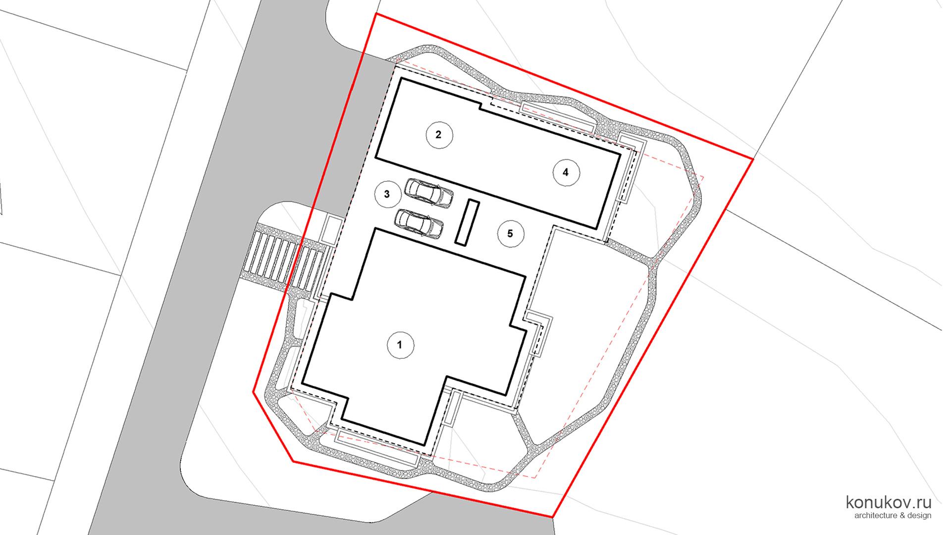
Генплан
1- жилой дом. 2- гараж на 2 м/места. 3- навес на 2 м/места. 4- СПА-комплекс. 5- терраса.

План 1 эт.
101 Тамбур 4.8 кв.м. 102 Гардеробная 5.4 кв.м. 103 Гардеробная 4.5 кв.м. 104 Холл 26.6 кв.м. 105 Туалет 3.4 кв.м. 106 Постирочная 6.6 кв.м. 107 Гостиная 41.3 кв.м. 108 Кухня-столовая 29.3 кв.м. 109 Кладовая 4.4 кв.м. 110 Холодная кладовая 4.4 кв.м. 111 Гостевая спальня 15.6 кв.м. 112 Гостевая спальня 15.6 кв.м. 113 Ванная 3.5 кв.м. 114 Мастер-спальня 20.6 кв.м. 115 Ванная 7.0 кв.м. 116 Гардеробная 5.5 кв.м. 117 Гараж 42.3 кв.м. 118 Кладовая 7.3 кв.м. 119 Котельная 7.9 кв.м. 120 Кладовая садового инвентаря 8.5 кв.м. 121 Тамбур 4.4 кв.м. 122 Туалет 3.7 кв.м.123 Комната отдыха 19.5 кв.м. 124 Помывочная 10.3 кв.м. 125 Парная 9.1 кв.м. 126 Топочная 4.4 кв.м.

План 2 эт.
201 Антресоль 67.2 кв.м.

Изометрия юго-восточная

Изометрия северо-западная

Разрез 1-1

Разрез 2-2

Разрез 3-3

Фасад 1

Фасад 2

Фасад 3

Фасад 4

АР

КЖ

Расчетная записка

КЖ
Утепление фасада
