


Генплан
Участок со значительным перепадом рельефа.

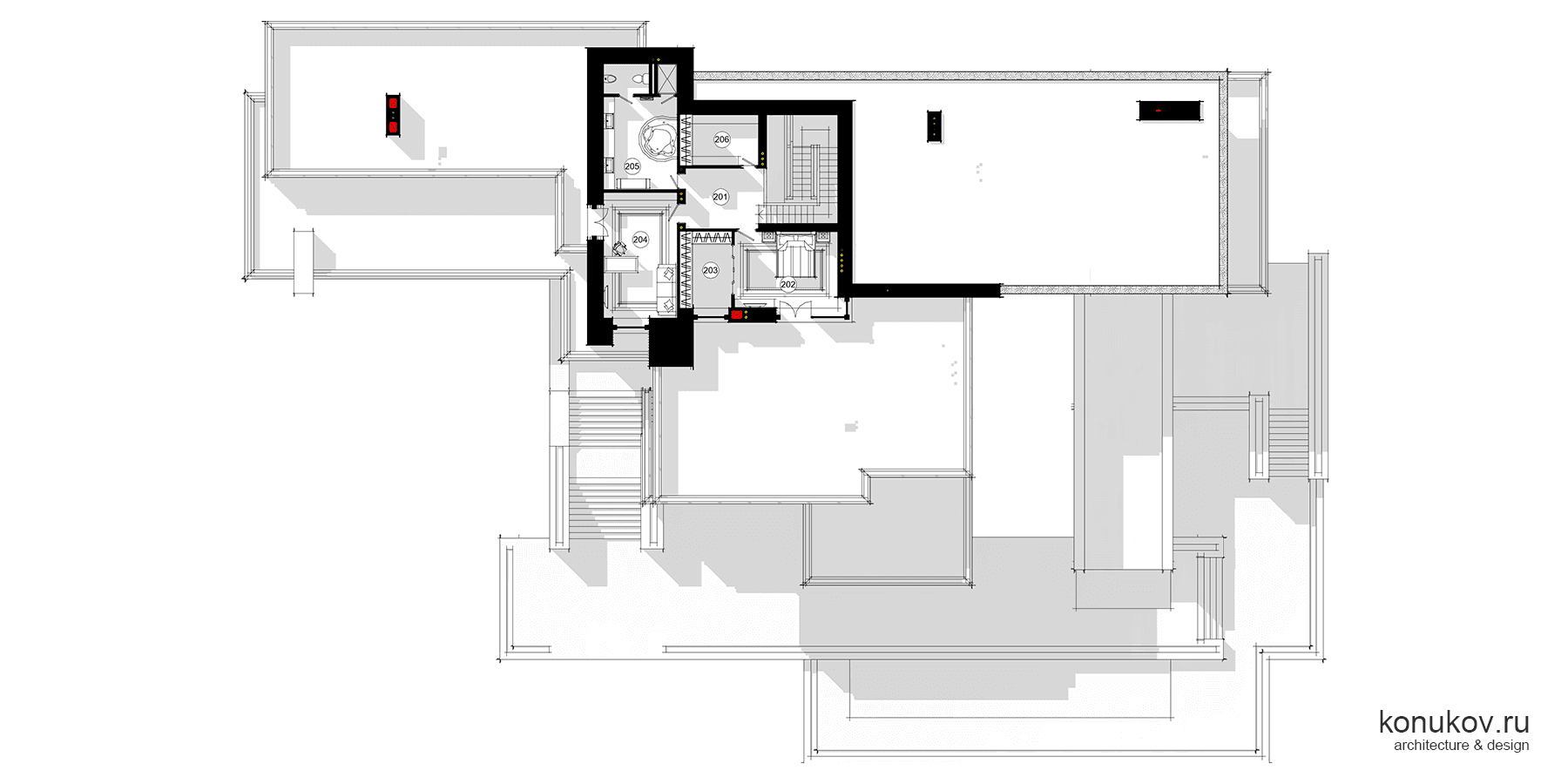
План 2 эт.
101 Тамбур 11.61м2. 102 Кладовая 12.09м2. 103 Холл 30.43м2. 104 Гардероб 8.53м2. 105 Туалет 5.72м2. 106 Постирочная 9.00м2. 107 Кладовая 3.19м2. 108 Гостиная 50.81м2. 109 Кухня 17.30м2. 110 Столовая 17.72м2. 111 Тамбур 4.38м2. 112 Раздевалка 2.98м2. 113 Помывочная 8.95м2. 114 Туалет 1.98м2. 115 Хаммам 5.84м2. 116 Сауна 6.10м2. 117 Комната отдыха 34.09м2. 118 Мастерская 21.72м2. 119 Кладовая 14.42м2. 120 Котельная 17.92м2. 121 Генераторная 13.51м2.

План 1 эт.
201 Холл 10.76м2. 202 Мастер-спальня 19.23м2. 203 Гардероб 9.58м2. 204 Кабинет 22.41м2. 205 Ванная 21.82м2. 206 Кладовая 9.65м2.

План цокольный эт.
001 Холл 33.24м2. 002 Погреб 24.21м2. 003 Техническое помещение 8.64м2. 004 Ванная 11.00м2. 005 Игровая 26.70м2. 006 Гостевая спальня 17.30м2. 007 Детская спальня 16.20м2. 008 Гардероб 7.13м2. 009 Детская спальня 17.22м2. 010 Гардероб 6.18м2.

Изометрия северная

Изометрия южная

Разрез 1-1

Разрез 4-4

Фасад 1

Фасад 2

Фасад 3

Фасад 4


КЖ



КЖ









Вид из гостинной )

