



Генплан

План
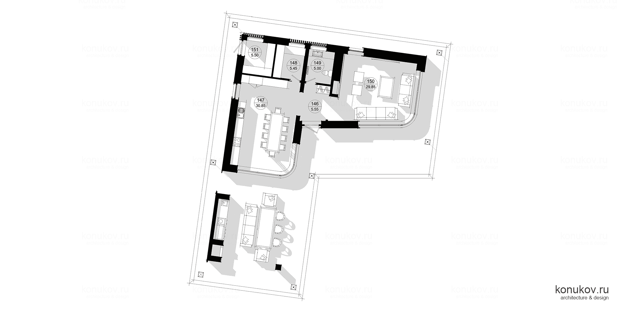
146 Прихожая 5.5 м2. 147 Кухня 30.8 м2. 148 Кладовая 5.4 м2. 149 Туалет 5.0 м2. 150 Гостиная 29.8 м2. 151 Кладовая садового инвентаря 5.5 м2.

Изометрия

Изометрия

Разрез 1-1

Фасад 1

Фасад 2

Фасад 3

Фасад 4


Москва
Юсония
ТЭП. S застройки: 149 м². S общая: 149 м². S помещений: 82 м².




Генплан

План
146 Прихожая 5.5 м2. 147 Кухня 30.8 м2. 148 Кладовая 5.4 м2. 149 Туалет 5.0 м2. 150 Гостиная 29.8 м2. 151 Кладовая садового инвентаря 5.5 м2.

Изометрия

Изометрия

Разрез 1-1

Фасад 1

Фасад 2

Фасад 3

Фасад 4

