Вид на бассейн


Вид со двора

Вид с дороги

Генплан
1. 2-х этажный жилой дом. 2. Бассейн. 3. Терраса

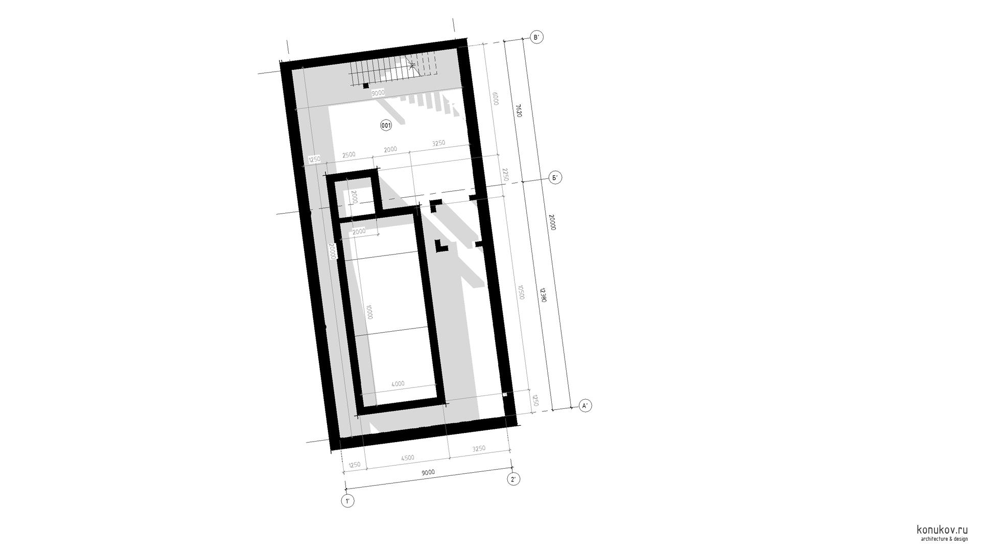
План подвала
001 Техническое помещение бассейна 165.38 кв.м.

План 1 эт.
101 Холл 59.87 кв.м. 102 Гардеробная 23.61 кв.м. 103 Туалет 4.50 кв.м. 104 Гараж 51.45 кв.м. 105 Кладовая 11.55 кв.м. 106 Гостиная 117.01 кв.м. 107 Кладовая 7.87 кв.м. 108 Игровая 28.57 кв.м. 109 Коридор 5.71 кв.м. 110 Ванная 11.08 кв.м. 111 Гардеробная 11.93 кв.м. 112 Спальня 21.46 кв.м. 113 Коридор 15.26 кв.м. 114 Туалет 3.64 кв.м. 115 Постирочная 7.45 кв.м. 116 Бассейн 92.25 кв.м. 117 Помывочная 3.47 кв.м. 118 Сауна 10.55 кв.м. 119 Топочная 4.52 кв.м. 120 Котельная 14.40 кв.м. 121 Лестница 8.55 кв.м. 122 Кладовая садового инвентаря 8.90 кв.м. 123 Лестничная площадка 1.56 кв.м. 124 Терраса 78.72 кв.м.

План 2 эт.
201 Холл 22.78 кв.м. 202 Тамбур 3.18 кв.м. 203 Гостевая спальня 13.77 кв.м. 204 Ванная 4.24 кв.м. 205 Ванная 9.93 кв.м. 206 Спальня 24.77 кв.м. 207 Гардеробная 5.65 кв.м. 208 Спальня 25.76 кв.м. 209 Гардеробная 5.03 кв.м. 210 Спальня 24.68 кв.м. 211 Гардеробная 8.41 кв.м. 212 Ванная 13.17 кв.м. 213 Кладовая 4.23 кв.м. 214 Холл 14.30 кв.м. 215 Кабинет 25.29 кв.м. 216 Сейфовая 3.62 кв.м. 217 Гардеробная 19.81 кв.м. 218 Гардеробная 19.73 кв.м.19 Мастер-спальня 30.33 кв.м. 220 Ванная 20.47 кв.м. 221 Лестничная площадка 2.28 кв.м. 222 Тамбур 5.08 кв.м. 223 Ванная 4.64 кв.м. 224 Комната персонала 15.35 кв.м. 225 Спальня 8.64 кв.м. 226 Спальня 8.16 кв.м. 227 Балкон 8.28 кв.м. 228 Балкон 8.00 кв.м. 229 Балкон 8.00 кв.м. 230 Балкон 46.36 кв.м.

Разрез 3-3

Разрез 2-2

Разрез 4-4

Фасад 3

Фасад 4

Фасад 1

Фасад 2

Архитектура / НВК+КЖ

КЖ
Архитектура / НВК+КЖ

Архитектура / НВК+КЖ

Изометрия Железобетонные консрукции

Изометрия Котлован

НВК
Изометрия Наружные сети. Водоснабжение и канализация.

КЖ
Монтаж стоек для стола перекрытия 1 этажа

Монтаж крупнощитовой опалубки
