



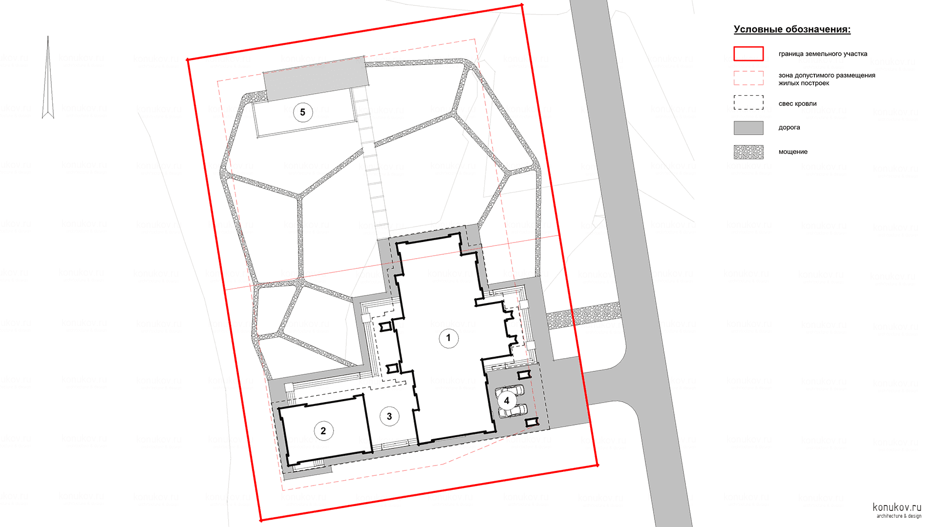
Генплан
1- Двух этажный жилой дом. 2- СПА-комплекс. 3- терраса. 4- навес на 2 м/места. 5- открытый бассейн.

План 1 эт.
101 Тамбур 13.1 кв.м. 102 Гардеробная 8.2 кв.м. 103 Гардеробная 8.2 кв.м. 104 Холл 39.4 кв.м. 105 Туалет 5.2 кв.м. 106 Постирочная\t7.5 кв.м. 107 Гостиная 50.1 кв.м. 108 Кухня-столовая 39.7 кв.м. 109 Кладовая 8.0 кв.м. 110 Коридор 6.1 кв.м. 111 Гостевая спальня 18.0 кв.м. 112 Гостевая спальня 10.9 кв.м. 113 Ванная 5.0 кв.м. 114 Холл 4.2 кв.м. 115 Мастер-спальня 21.4 кв.м. 116 Гардеробная 10.2 кв.м. 117 Гардеробная 7.6 кв.м. 118 Ванная 12.8 кв.м. 119 Котельная 10.3 кв.м. 120 Кладовая 8.2 кв.м. 121 Кладовая садового инвентаря 8.6 кв.м. 122 Комната отдыха 23.1 кв.м. 123 Кладовая 5.9 кв.м. 124 Раздевалка 5.3 кв.м. 125 Туалет 3.1 кв.м. 126 Спа 19.0 кв.м. 127 Хаммам 6.0 кв.м. 128 Баня 9.0 кв.м.

План 2 эт.
129 Дровник 5.3 кв.м. 201 Холл 15.4 кв.м. 202 Детская спальня 17.2 кв.м. 203 Детская спальня 17.2 кв.м. 204 Туалет 4.7 кв.м. 205 Ванная 12.8 кв.м. 206 Игровая 23.8 кв.м. 207 Детская спальня 18.3 кв.м.

Изометрия северо-восток

Изометрия северо-западная

Разрез 3-3

Разрез 1-1

Разрез 2-2

Фасад 1

Фасад 2

Фасад 3

Фасад 4

АР
В-В

А-А

Б-Б

Изометрия подстропильная система

КЖ
Изометрия Монолитный каркас

НВК
Изометрия сети нвк

КЖ

