






Генплан
1. Трехэтажный жилой дом. 2. Бассейн. 3. Гараж. 4. Навес на 2 м/места. 5. Терраса.

План подвала

План 1 эт.

План 3 эт.

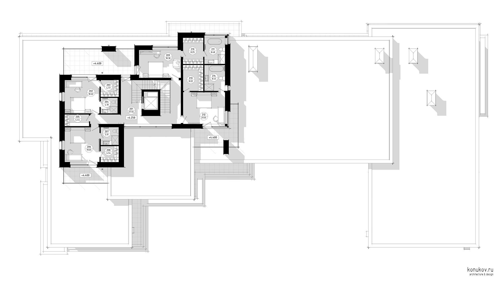
План 2 эт.

Разрез 2-2

Разрез 3-3

Разрез 4-4

Разрез 1-1

Фасад 3

Фасад 4

Фасад 1

Фасад 2

Московская область. Курово
Юсония
ТЭП. S участка: 3264 м². S застройки: 931 м². S общая: 1015 м². S помещений: 959 м².







Генплан
1. Трехэтажный жилой дом. 2. Бассейн. 3. Гараж. 4. Навес на 2 м/места. 5. Терраса.

План подвала

План 1 эт.

План 3 эт.

План 2 эт.

Разрез 2-2

Разрез 3-3

Разрез 4-4

Разрез 1-1

Фасад 3

Фасад 4

Фасад 1

Фасад 2
