


Генплан
1. Двухэтажный жилой дом

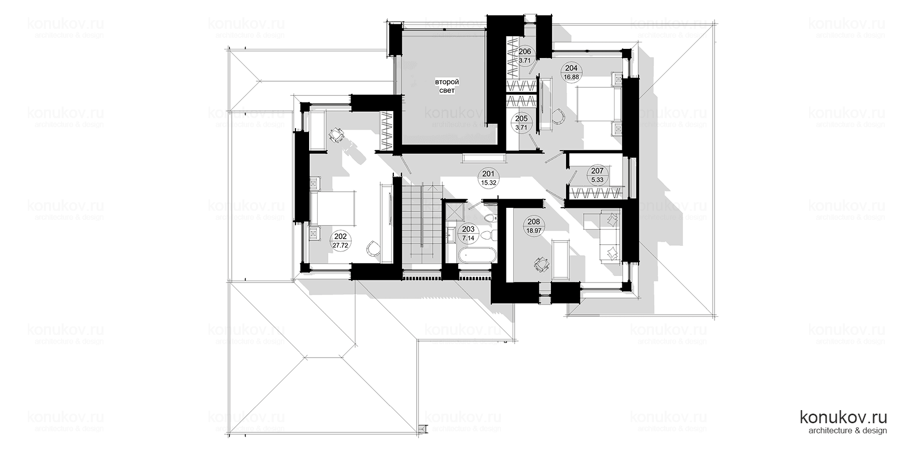
План 2 эт.
201 Холл 15.3м2. 202 Спальня 27.7м2. 203 Ванная 7.1м2. 204 Спальня 16.9м2. 205 Кладовая 3.7м2. 206 Гардеробная 3.7м2. 207 Кладовая 5.3м2. 208 Кабинет 19.0м2.

План подвал
001 Холл 10.1м2. 002 Комната отдыха 22.1м2. 003 Туалет 3.1м2. 004 Постирочная 8.5м2. 005 Кухня 13.1м2. 006 Кладовая 7.5м2. 007 Винный погреб 9.8м2.

План 1 эт.
101 Тамбур 2.7м2. 102 Котельная 5.0м2. 103 Прихожая 7.1м2. 104 Гостиная 33.1м2. 105 Кухня-столовая 25.0м2. 106 Кладовая 5.9м2. 107 Коридор 4.6м2. 108 Туалет 5.3м2. 109 Мастер-спальня 20.6м2. 110 Гардеробная 4.4м2. 111 Гардеробная 4.4м2. 112 Ванная 6.2м2. 113 Спальня 13.3м2. 114 Гараж 18.7м2. 115 Мастерская 6.2м2. 116 Тамбур 1.8м2.

Изометрия северо-восточная

Изометрия северо-западная

Разрез 2-2

Разрез 1-1

Фасад 2

Фасад 4

Фасад 3

Фасад 1


КЖ
Изометрия деформация консрукций

КЖ



КЖ



Подбираем цвет обшивки








Мокап лобовой доски



Армирование основания колонн

Опалубка перекрытия 1 этажа







