


Генплан
3 участка объединены в один. На юго-востоке устраиваем детскую площадку. Пятно застройки смещаем на северо-запад.

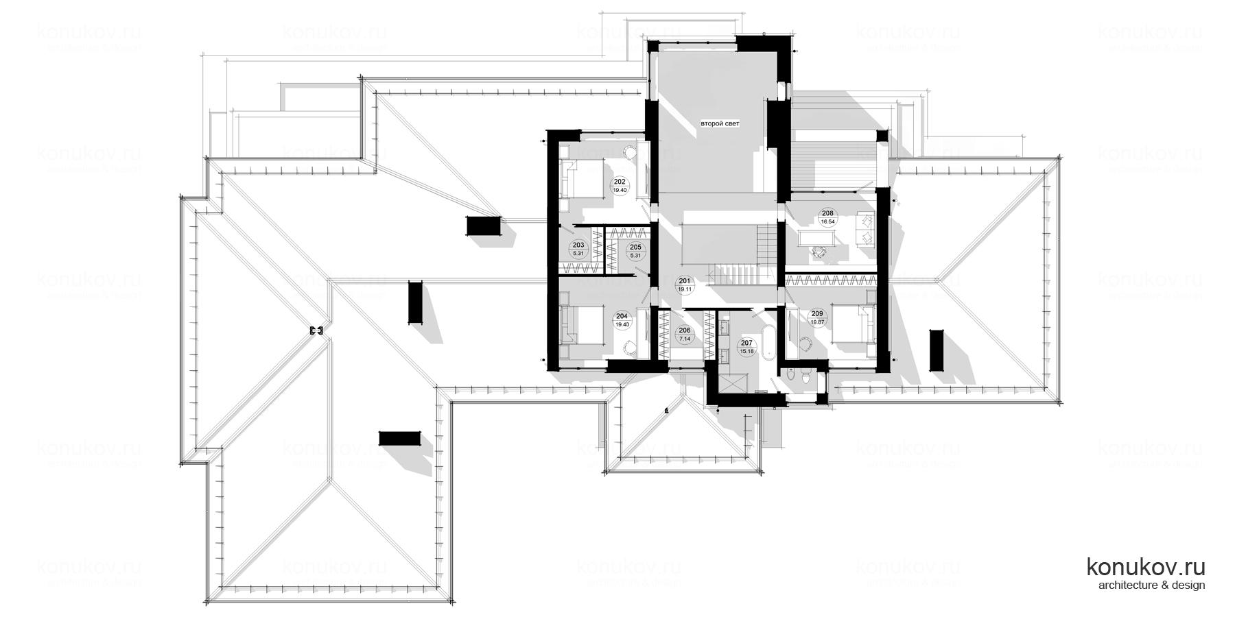
План

План

Изометрия

Изометрия

Разрез 1-1

Разрез 2-2

Фасад

Фасад

Москва
Неорусский стиль Райта
ТЭП. Площадь участка 2070 кв.м. Площадь застройки дома 359 кв.м. Общая площадь дома 281 кв.м. Суммарная площадь помещений дома 256 кв.м. Площадь застройки бани 175 кв.м. Общая площадь бани 110 кв.м. Суммарная площадь помещений бани 101 кв.м.. S участка: 3525 м². S застройки: 791 м².



Генплан
3 участка объединены в один. На юго-востоке устраиваем детскую площадку. Пятно застройки смещаем на северо-запад.

План

План

Изометрия

Изометрия

Разрез 1-1

Разрез 2-2

Фасад

Фасад
