


Генплан
1. 2-х этажный жилой дом. 2. Баня. 3. Жилой дом. 4. Хозяйственная постройка

План 1 эт.

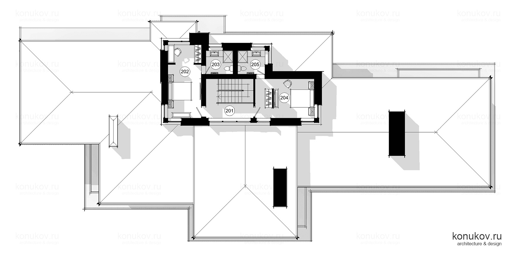
План 2 эт.

Разрез 1-1

Разрез 2-2

Фасад 1

Фасад 2

Фасад 3

Фасад 4


Москва
Юсония
ТЭП. Площадь участка №1 1 509м2. Площадь участка №2 893м2. Площадь застройки 596м2.Общая площадь дома 267м2. Общая площадь бани 39м2. Суммарная площадь помещений дома 270м2. Суммарная площадь помещений бани 36м2.. S участка: 4402 м². S застройки: 596 м².



Генплан
1. 2-х этажный жилой дом. 2. Баня. 3. Жилой дом. 4. Хозяйственная постройка

План 1 эт.

План 2 эт.

Разрез 1-1

Разрез 2-2

Фасад 1

Фасад 2

Фасад 3

Фасад 4

