


Генплан
1. 2-х этажный жилой дом. 2. Хозяйственная постройка. 3. Детский городок. 4. Трансформаторная подстанция ТП РУ-6кВ

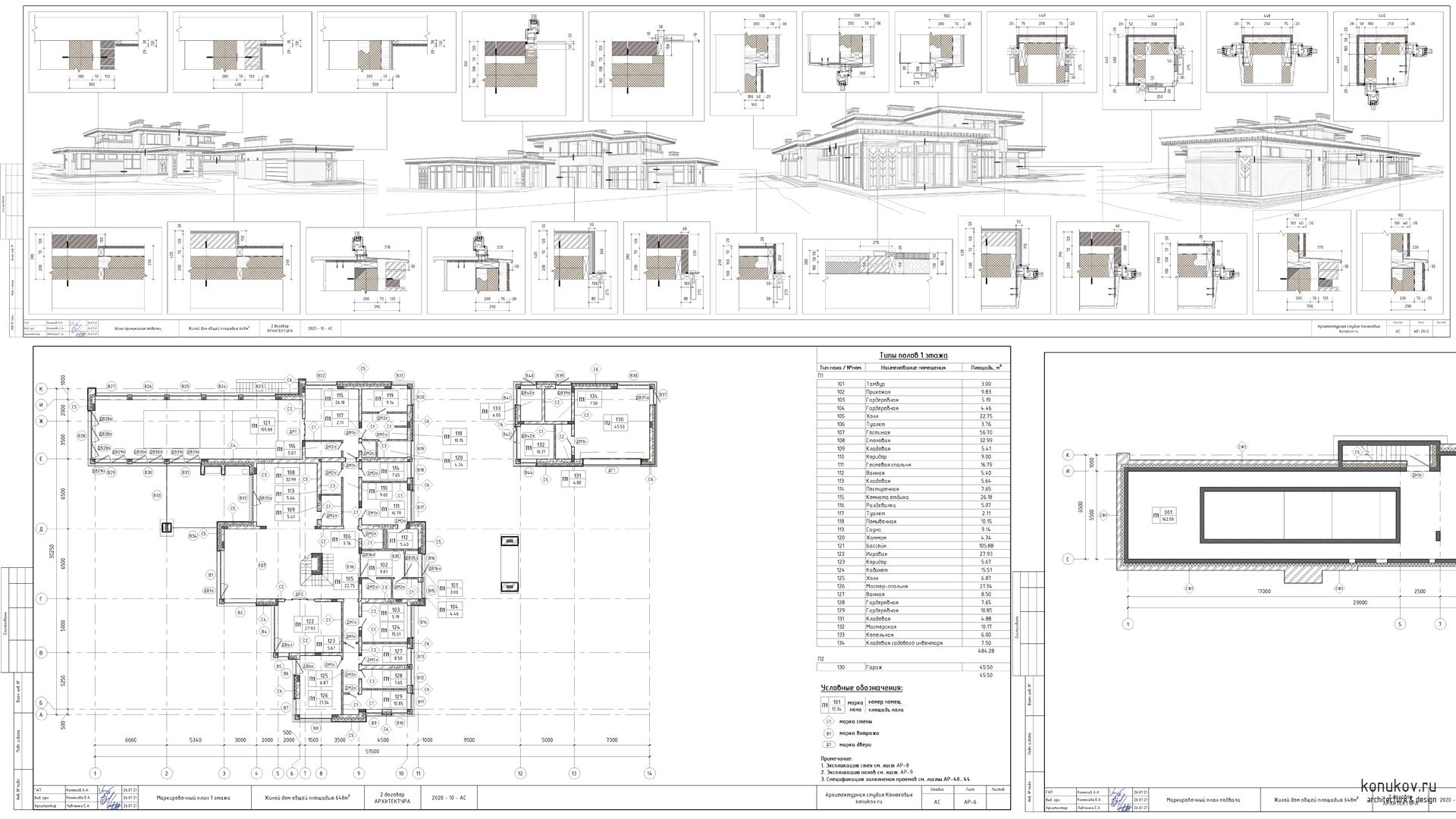
План подвал
001 Техническое помещение бассейна 62.1 м2.

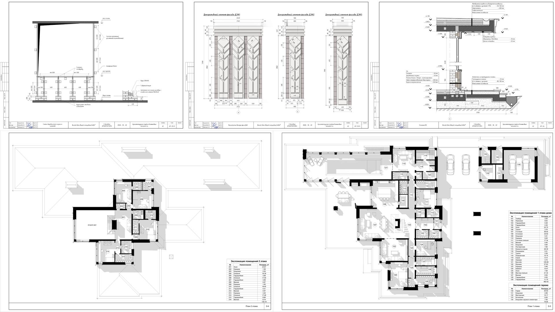
План 1 эт.
101 Тамбур 3.0 м2. 102 Прихожая 9.8 м2. 103 Гардеробная 5.2 м2. 104 Гардеробная 4.3 м2. 105 Холл 22.7 м2. 106 Туалет 3.7 м2. 107 Гостиная 58.5 м2. 108 Столовая 34.5 м2. 109 Кладовая 5.4 м2. 110 Коридор 9.0 м2. 111 Гостевая спальня 17.3 м2. 112 Ванная 5.4 м2. 113 Кладовая 5.6 м2. 114 Постирочная 7.65 м2. 115 Комната отдыха 26.38 м2. 116 Раздевалка 5.51 м2. 117 Туалет 2.2 м2. 118 Помывочная 10.1 м2. 119 Сауна 9.1 м2. 120 Хаммам 4.7 м2. 121 Бассейн 105.8 м2. 122 Игровая 27.9 м2. 123 Коридор 5.4 м2. 124 Кабинет 15.4 м2. 125 Холл 7.1 м2. 126 Мастер-спальня 21.3 м2. 127 Ванная 8.5 м2. 128 Гардеробная 8.5 м2. 129 Гардеробная 11.70 м2. 130 Гараж 45.50 м2. 131 Кладовая 4.88 м2. 132 Мастерская 10.1 м2. 133 Котельная 6.0 м2. 134 Кладовая садового инвентаря 7.5 м2.

План 2 эт.
201 Холл 23.6 м2. 202 Коридор 1.5 м2. 203 Кладовая 2.5 м2. 204 Спальня 16.3 м2. 205 Гардеробная 3.9 м2. 206 Спальня 17.00 м2. 207 Гардеробная 3.88 м2. 208 Ванная 4.87 м2. 209 Коридор 1.6 м2. 210 Спальня 16.4 м2. 211 Гардеробная 4.2 м2. 212 Ванная 4.8 м2. 213 Коридор 3.4 м2. 214 Спальня 17.4 м2. 215 Гардеробная 6.6 м2. 216 Ванная 6.7 м2.

Изометрия юго-западная

Изометрия северо-западная

Разрез 1-1

Разрез 2-2

Фасад 1

Фасад 4

Фасад 2

Фасад 3


АР



КЖ




Изометрия конструкции железобетонные. Монолитные

Изометрия взрыв схема

НВК
Изометрия сети наружного водоснабжения, водоотведения и канализации

КЖ


Заливка перекрытия. Общий вид

Армирование перекрытия 1 эт.

Стол для перекрытия 1 эт.






Арматурный цех



Со стороны двора
