


Генплан
1- существующий двухэтажный жилой дом. 2- вновь возводимый гостевой дом с бассейном. 3- гараж.

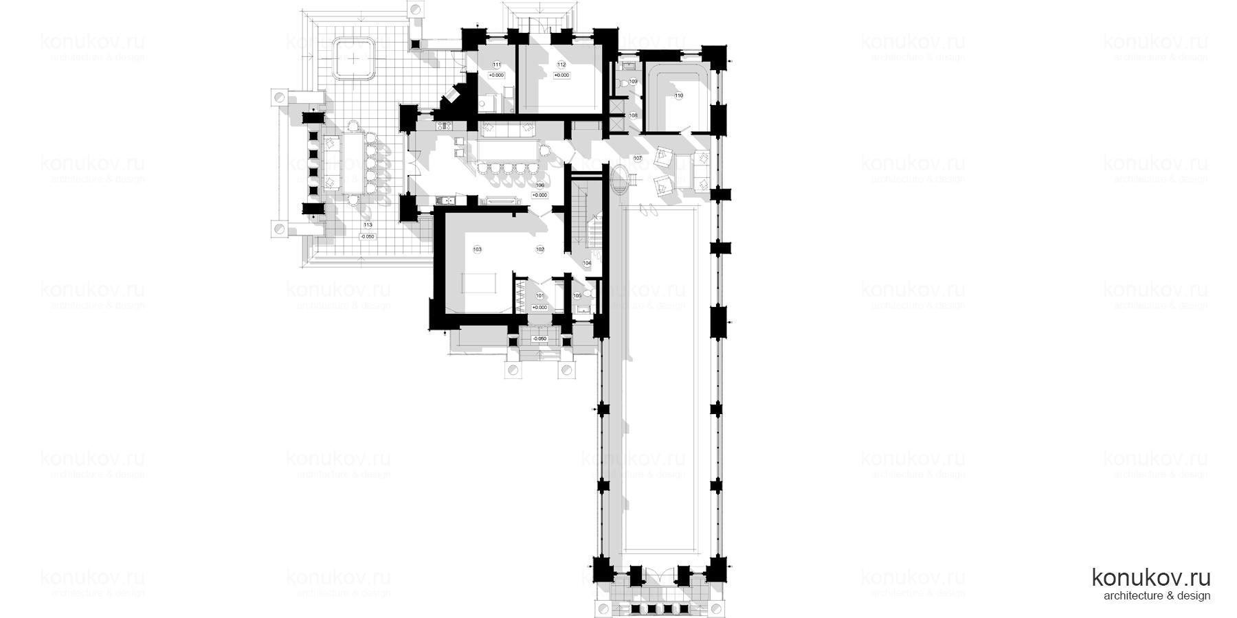
План

План
101 Тамбур 5.8 м2. 102 Холл 11.1 м2. 105 Туалет 3.0 м2. 103 Гольф-комната 24.0 м2. 106 Комната отдыха 43.3 м2. 107 Бассейн 159.8 м2. 110 Хаммам 16.1 м2. 104 Лестница 10.6 м2. 111 Котельная 9.3 м2. 112 Хозяйственная кладовая 20.4 м2.

Изометрия

Изометрия

Разрез 1-1

Разрез 2-2

Фасад

Фасад

Фасад

Фасад

Фасад

