


Генплан
1. 2-х этажный жилой дом. 2. Хозяйственная постройка. 3. Детский городок. 4.Трансформаторная подстанция ТП РУ-6кВ

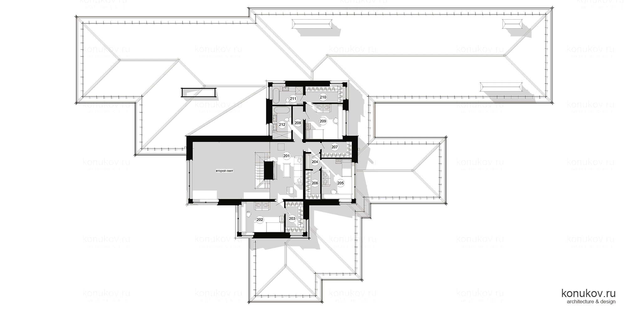
План
201 Холл 25.96м2. 202 Спальня 17.08м2. 203 Гардеробная 7.00м2. 204 Тамбур 3.06м2. 205 Спальня 15.71м2. 206 Гардеробная 5.54м2. 207 Кладовая 6.17м2. 208 Коридор 4.54м2. 209 Спальня 17.13м2. 210 Гардеробная 7.86м2. 211 Ванная 7.35м2. 212 Ванная 8.24м2.

План
001 Техническое помещение бассейна 62.13м2.

План
101 Тамбур 3.00м2. 102 Прихожая 9.83м2. 103 Гардеробная 5.28м2. 104 Гардеробная 4.36м2. 105 Холл 22.75м2. 106 Туалет 3.76м2. 107 Гостиная 58.50м2. 108 Столовая 34.50м2. 109 Кладовая 5.41м2. 110 Коридор 9.00м2. 111 Гостевая спальня 17.34м2. 112 Ванная 5.40м2. 113 Кладовая 5.64м2. 114 Постирочная 7.65м2. 115 Комната отдыха 26.00м2. 116 Помывочная 6.38м2. 117 Раздевалка 4.99м2. 118 Хаммам 5.76м2. 119 Сауна 9.11м2. 120 Бассейн 105.88м2. 121 Кабинет 18.83м2. 122 Коридор 3.00м2. 123 Холл 5.35м2. 124 Мастер-спальня 22.00м2. 125 Ванная 8.50м2. 126 Гардеробная 6.67м2. 127 Гардеробная 9.26м2. 128 Гараж 45.50м2. 129 Кладовая 4.88м2. 130 Мастерская 10.17м2. 131 Кладовая садового инвентаря 7.50м2. 132 Котельная 6.00м2.

Изометрия

Изометрия

Разрез 2-2

Разрез 1-1

Разрез 3-3

Фасад

Фасад

Фасад

Фасад

