



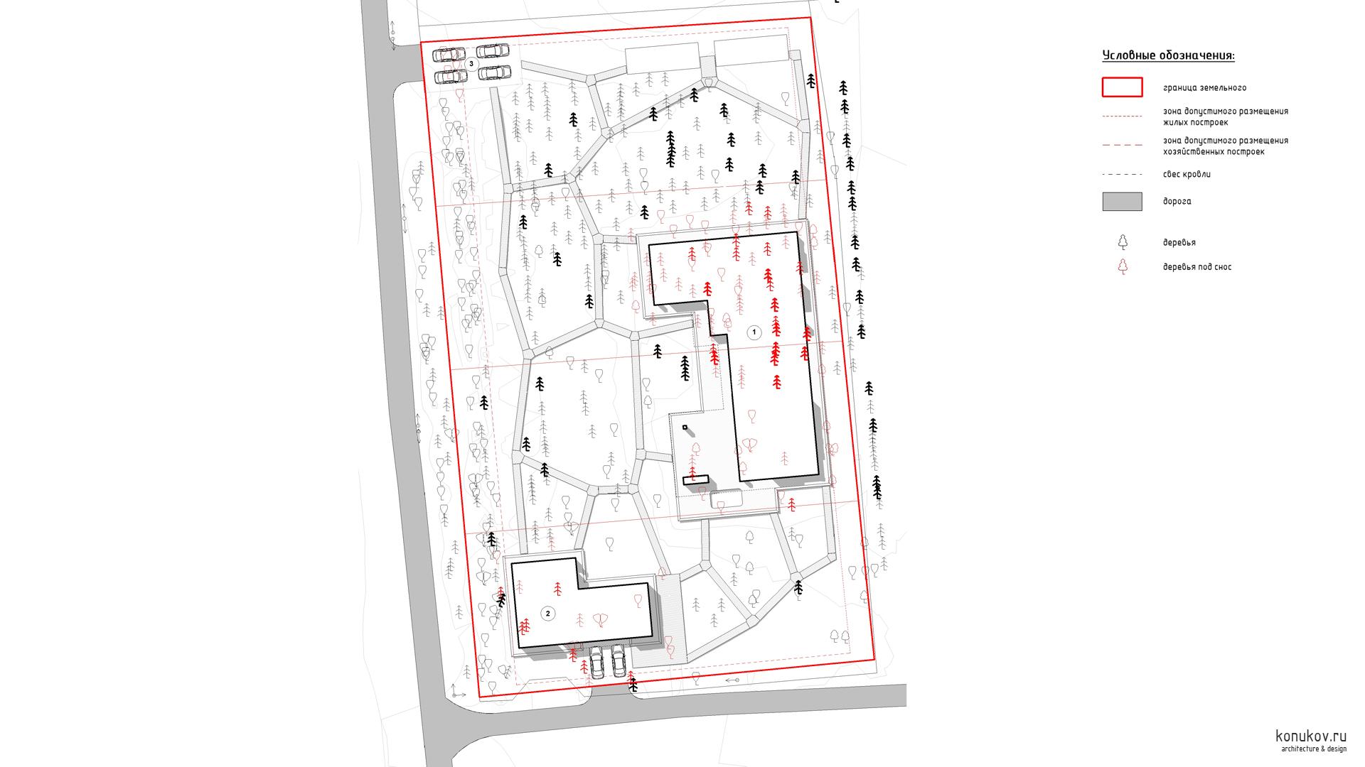
Генплан
1. Двухэтажный жилой дом. 2. Гараж. 3. Гостевая парковка

План 1 эт.
101 Тамбур 5.6 м?. 102 Холл 28.6 м?. 103 Туалет 3.8 м?. 104 Гардеробная\t4.8 м?. 105 Кладовая 3.2 м?. 106 Постирочная 5.4 м?. 107 Коридор 11.5 м?. 108 Мастер-спальня 28.0 м?. 109 Ванная 12.4 м?. 110 Гардеробная 12.4 м?. 111 Гостевая спальня 15.7 м?. 112 Ванная 4.5 м?. 113 Коридор 5.2 м?. 114 Детская сальня 17.3 м?. 115 Ванная 4.4 м?. 116 Гостевая спальня 14.2 м?. 117 Гостиная 117.4 м?. 118 Кладовая 3.7 м?. 119 Холодная кладовая 2.6 м?. 120 Комната отдыха 28.0 м?. 121 СПА 16.6 м?. 122 Туалет 2.6 м?. 123 Раздевалка 3.8 м?. 124 Сауна 6.1 м?. 125 Тамбур 3.9 м?. 126 Постирочная 3.9 м?. 127 Комната персонала 21.5 м?. 128 Ванная 4.6 м?. 129 Кладовая садового инвентаря 10.1 м?. 130 Котельная 8.6 м?. 131 Генераторная 5.8 м?. 132 Гараж 55.5 м?. 133 Кладовая 5.8 м?. 134 Мастерская 5.8 м?.

План 2 эт.
201 Комната отдыха 39.2 м?. 202 Туалет 3.1 м?. 203 Тренажерный зал 15.8 м?. 204 Кабинет 15.1 м?.

Изометрия северо-западная

Изометрия юго-восточная

Разрез 2-2

Разрез 1-1

Фасад 1

Фасад 2

Фасад 3

Фасад 4

