





Генплан
1- жилой дом. 2-гараж. 3- навес на два машино места.

План
101 Прихожая 8.10 м². 102 Гардеробная 7.46 м². 103 Кладовая 5.80 м². 104 Холл 33.00 м². 105 Туалет 5.40 м². 106 Постирочная 9.00 м². 107 Коридор 6.24 м². 108 Спальня 18.20 м². 109 Ванная 7.70 м². 110 Гардеробная 5.00 м². 111 Коридор 6.10 м². 112 Кабинет 19.60 м². 113 Спальня 20.34 м². 114 Ванная 9.62 м². 115 Гардеробная 12.85 м². 116 Гостиная 43.20 м². 117 Кухня-столовая 35.28 м². 118 Кладовая 7.72 м². 119 Холодная кладовая 5.90 м². 120 Котельная 8.46 м². 121 Гараж 35.00 м². 122 Кладовая 7.96 м². 123 Кладовая садового инвентаря 7.96 м². 124 Мастерская 14.10 м².

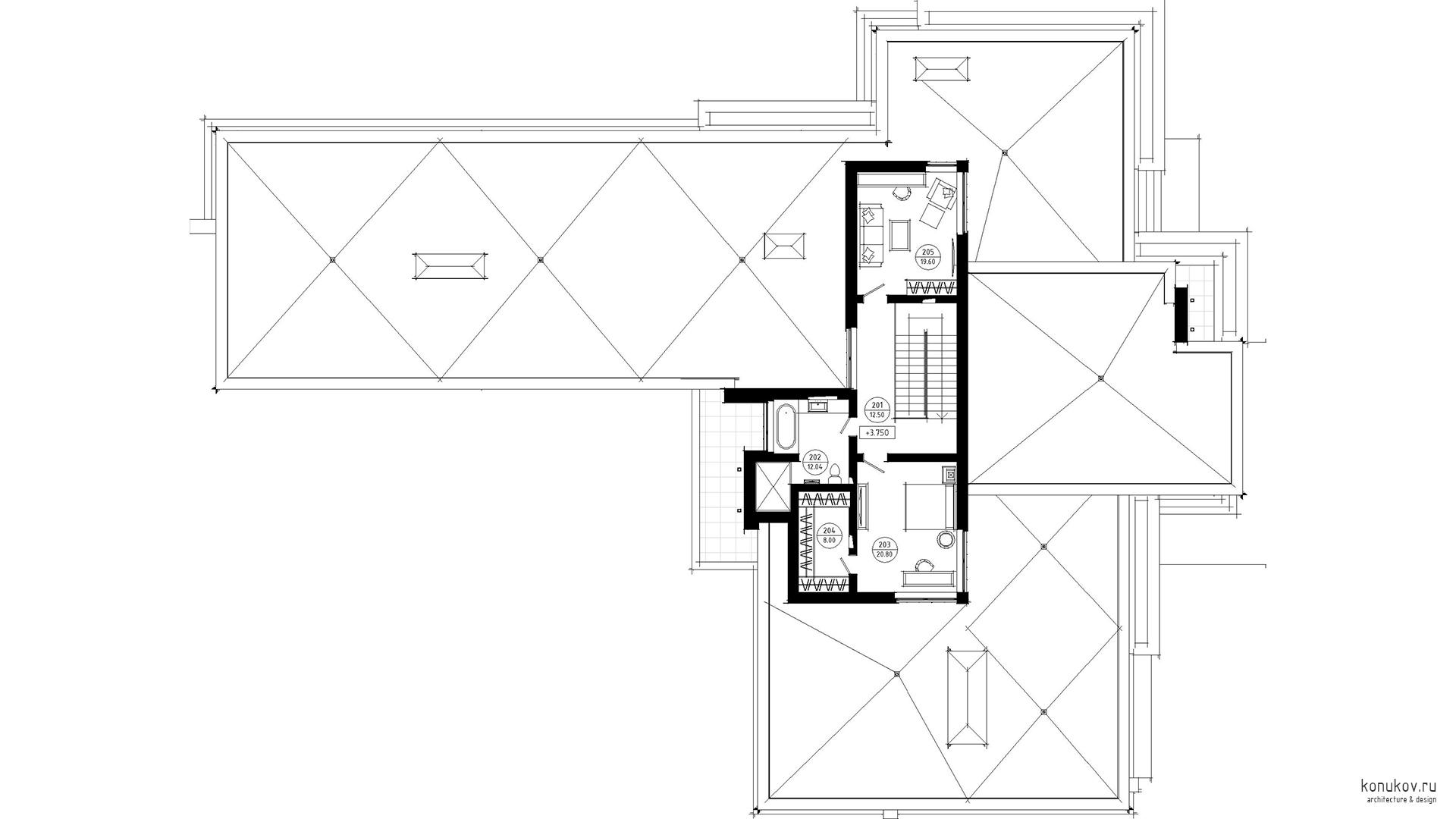
План
201 Холл 12.50 м². 202 Ванная 12.04 м². 203 Спальня 20.80 м². 204 Гардеробная 8.00 м². 205 Гостевая спальня 19.60 м².

Изометрия

Изометрия

Изометрия

Разрез 1-1

Разрез 2-2

Фасад 1

Фасад 2

Фасад 3

Фасад 4
