



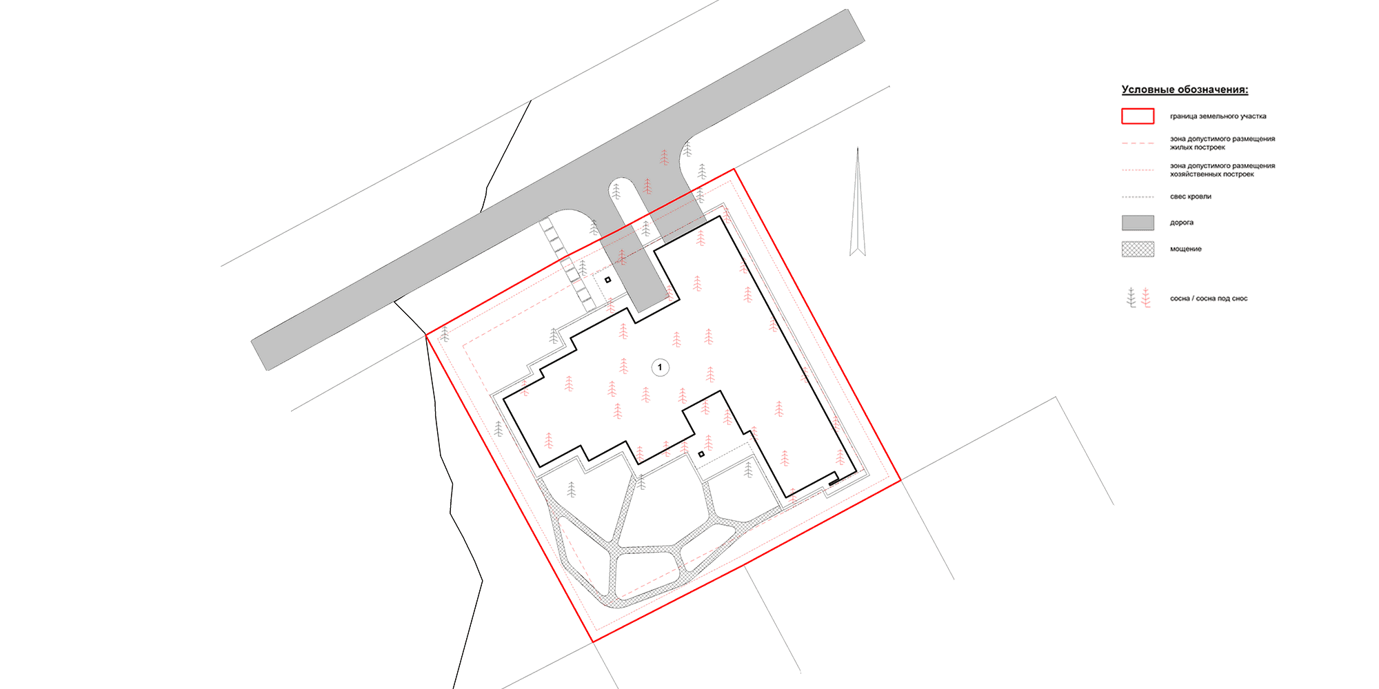
Генплан
1. одноэтажный жилой дом

План
101 Прихожая 9.3 м2. 102 Гардеробная 5.8 м2. 103 Гардеробная 3.2 м2. 104 Постирочная 6.1 м2. 105 Холл 26.9 м2. 106 Гостиная 49.5 м2. 107 Кухня 25.6 м2. 108 Кладовая 3.0 м2. 109 Туалет 5.4 м2. 110 Мастерская 11.5 м2. 111 Гостевая спальня 16.6 м2. 112 Тамбур 5.5 м2. 113 Мастер-спальня 20.0 м2. 114 Гардеробная 8.5 м2. 115 Ванная 8.0 м2. 116 Гостевая спальня 21.4 м2. 117 Холл 9.0 м2. 118 Раздевалка 4.4 м2. 119 Туалет 2.6 м2. 120 Техническое помещение 5.1 м2. 121 Бассейн 112.0 м2. 122 Душ 2.0 м2. 123 Гараж 43.2 м2. 124 Кладовая 5.3 м2. 125 Кладовая садового инвентаря 9.1 м2. 126 Котельная 11.4 м2. 127 Вент камера 10.0 м2. 128 Уличный туалет 1.6 м2.

Изометрия

Изометрия

Разрез 1-1

Разрез 2-2

Разрез 3-3

Фасад

Фасад

Фасад

Фасад

