




Генплан
1. Жилой дом. 2. СПА

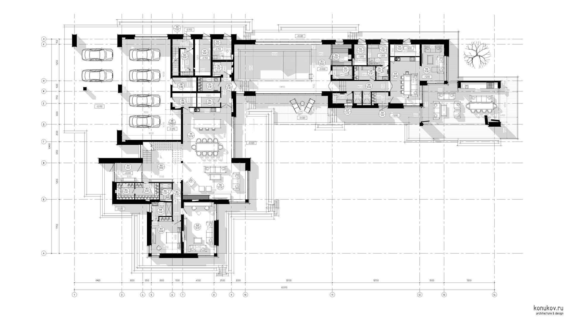
План 1 эт.

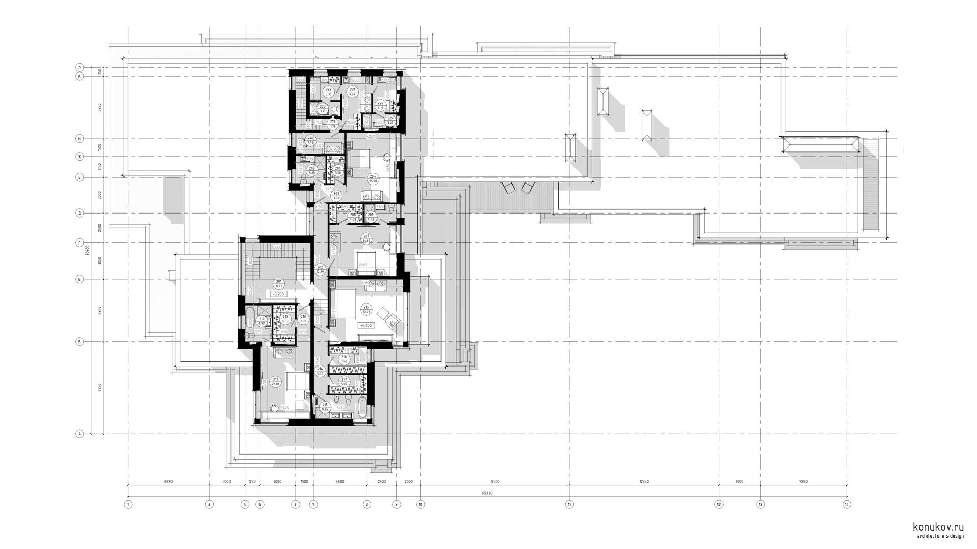
План 2 эт.

Изометрия юго-восточная

Изометрия северо-восточная

Изометрия северо-западная

Разрез 1-1

Разрез 2-2

Разрез 3-3

Фасад 1

Фасад 2

Фасад 3

Фасад 4

КЖ

Заполнение проемов двойным щелевым кирпичом



Москва
Современный стиль
ТЭП. S участка: 3335 м². S застройки: 897 м².





Генплан
1. Жилой дом. 2. СПА

План 1 эт.

План 2 эт.

Изометрия юго-восточная

Изометрия северо-восточная

Изометрия северо-западная

Разрез 1-1

Разрез 2-2

Разрез 3-3

Фасад 1

Фасад 2

Фасад 3

Фасад 4


Заполнение проемов двойным щелевым кирпичом


