





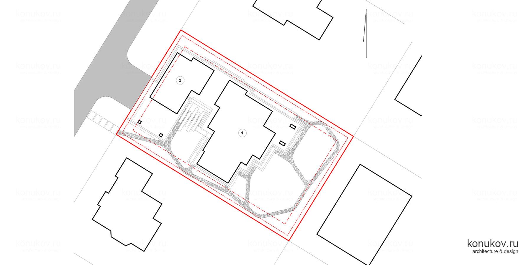
Генплан
1. Одноэтажный жилой дом. 2. Хозяйственная постройка

План

Изометрия юго-восточная

Изометрия северо-восточная

Разрез 1-1

Разрез 2-2

Фасад 4

Фасад 3

АР



Тип фундамента
Ленточный фундамент. Перед началом строительных работ нужно выполнить геологию.

Наружные сети (нвк)
Для всех наружных сетей мы оставляем под бетоном закладные трубы D160. В них потом прокидываем всё, что хотим: электричество, слаботочку. полив и т.д. Одну напорную трубу закладываем на уровень промерзания, для воды.

Что входит в контракт
Договор подряда: строительство монолитного каркаса и сетей НВК. Строим все, что на этой 3d модели. +Договор поставки: проект дома раздел АР.

10.2 млн.р.

V кладки: 170 куб .м.S окон: 121 кв .мS кровли: 628 кв .м.S от. фасадов: 386 кв. м.
