


Генплан
1. Двухэтажный жилой дом. 2. Баня. 3. Беседка-барбекю

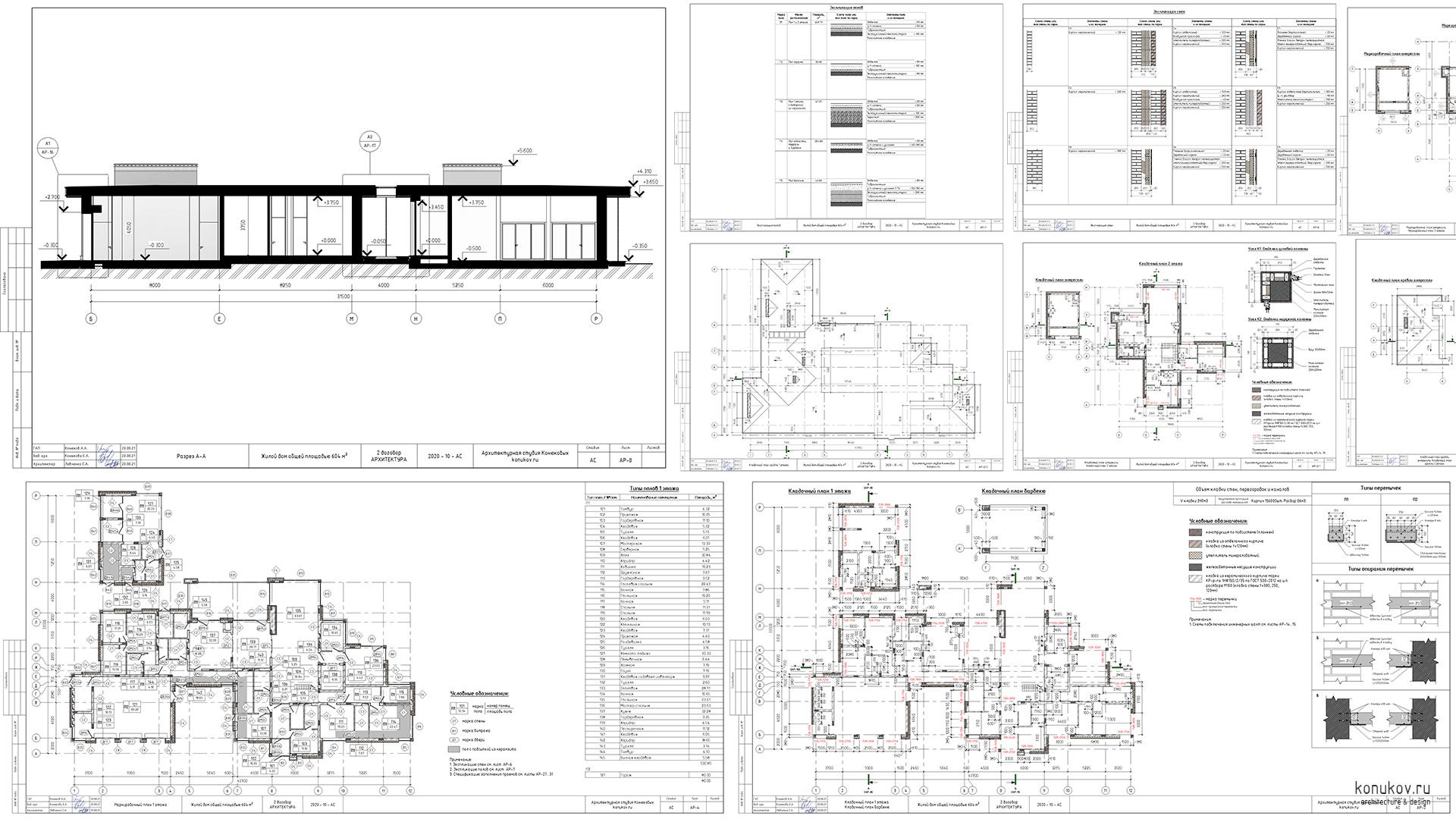
План 1 эт.
101 Тамбур 4.32м2. 102 Прихожая 10.05м2. 103 Гардеробная 10.74м2. 104 Кладовая 5.72м2. 105 Туалет 5.53м2. 106 Кладовая 4.44м2. 107 Мастерская 13.81м2. 108 Холл 29.49м2. 109 Коридор 3.79м2. 110 Кабинет 19.67м2. 111 Оружейная 7.91м2. 112 Гардеробная 8.41м2. 113 Гостевая спальня 22.72м2. 114 Ванная 7.29м2. 115 Гостиная 64.63м2. 116 Столовая 29.34м2. 117 Кухня 32.24м2. 118 Коридор 3.63м2. 119 Мастер-спальня 23.63м2. 120 Ванная 11.74м2. 121 Гардеробная 9.77 122 Коридор 16.70 123 Постирочная 13.36 124 Кладовая 3.00 125 Туалет 2.55 126 Кладовая 6.92м2. 127 Тамбур 2.04м2. 128 Гостиная 19.77м2. 129 Спальня 10.76м2. 130 Спальня 11.24м2. 131 Ванная 5.91м2. 132 Кладовая 7.99м2. 133 Гараж 63.00м2. 134 Котельная 6.75м2. 135 Кладовая 8.44м2. 136 Прихожая 4.33м2. 137 Раздевалка 4.93м2. 138 Туалет 3.71м2. 139 Комната отдыха 28.08м2. 140 Помывочная 8.03м2. 141 Хаммам 7.35м2. 142 Сауна 7.35м2. 143 Кладовая садового инвентаря 11.26м2.

План 2 эт.
201 Холл 26.04м2. 202 Игровая 36.38м2. 203 Гардеробная 6.96м2. 204 Спальня 22.20м2. 205 Ванная 8.03м2. 206 Гардеробная 7.55м2. 207 Спальня 22.00м2. 208 Ванная 8.09м2.

Изометрия южная

Изометрия северная

Разрез 1-1

Разрез 2-2

Фасад 1

Фасад 3

Фасад 4

Фасад 2



АР

АР

Листы раздела АР 3

КЖ
Листы раздела КЖ

Листы раздела КЖ

КЖ
Тест кровли на герметичность



Заполнение кладкой монолитного каркаса










Мет. перемычка





Монолитный каркас и заполнение стен со стороны участка


Котлован

