


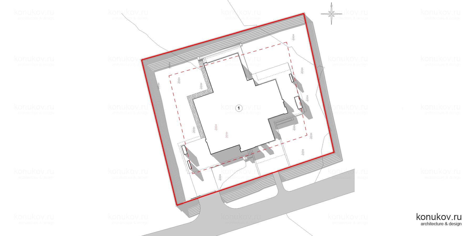
Генплан
Участок небольшой. После того как мы обступили 3 метра, для пятна застройки осталось совсем не много места. Пятно, где разрешена капитальная застройка показано пунктиром. Мы постарались, как смогли, сохранить сосны и ценные деревья.

План 1 эт.
101 Тамбур 4.4 м2, 102 Гардероб 5.0 м2, 103 Холл 14.8 м2, 104 Туалет 3.3 м2, 105 Гостиная 53.5 м2, 106 Кладовая при кухне 4.5 м2, 107 Коридор 11.2 м2, 108 Котельная 10.0 м2, 109 Ванная 9.0 м2, 110 Гостевая спальня 12.3 м2, 111 Детская спальня 12.9 м2, 112 Мастер-спальня 24.1 м2, 113 Гардероб 4.2 м2, 114 Ванная 4.8 м2, 115 Кладовая 3.8 м2, 116 Антресоль 37.8 м2

План антресоли

Изометрия северо-восток

Изометрия юго-запад

Разрез 1-1

Разрез 2-2

Фасад 1

Фасад 2

Фасад 3

Фасад 4



АР



Пятно застройки: 27,5 м х 23,5 м. Отступы от границ участка 3м. Отступ от дороги минимум 5 м.

Тип фундамента
Плитный фундамент. Перед началом строительных работ нужно выполнить геологию.

Наружные сети (нвк)
Для всех наружных сетей мы оставляем под бетоном закладные трубы D160. В них потом прокидываем всё, что хотим: электричество, слаботочку. полив и т.д. Одну напорную трубу закладываем на уровень промерзания, для воды.

8.3 млн.р.

V кладки: 127 куб .м.S окон: 129 кв .мS кровли: 432 кв .м.S от. фасадов: 321 кв. м.

