



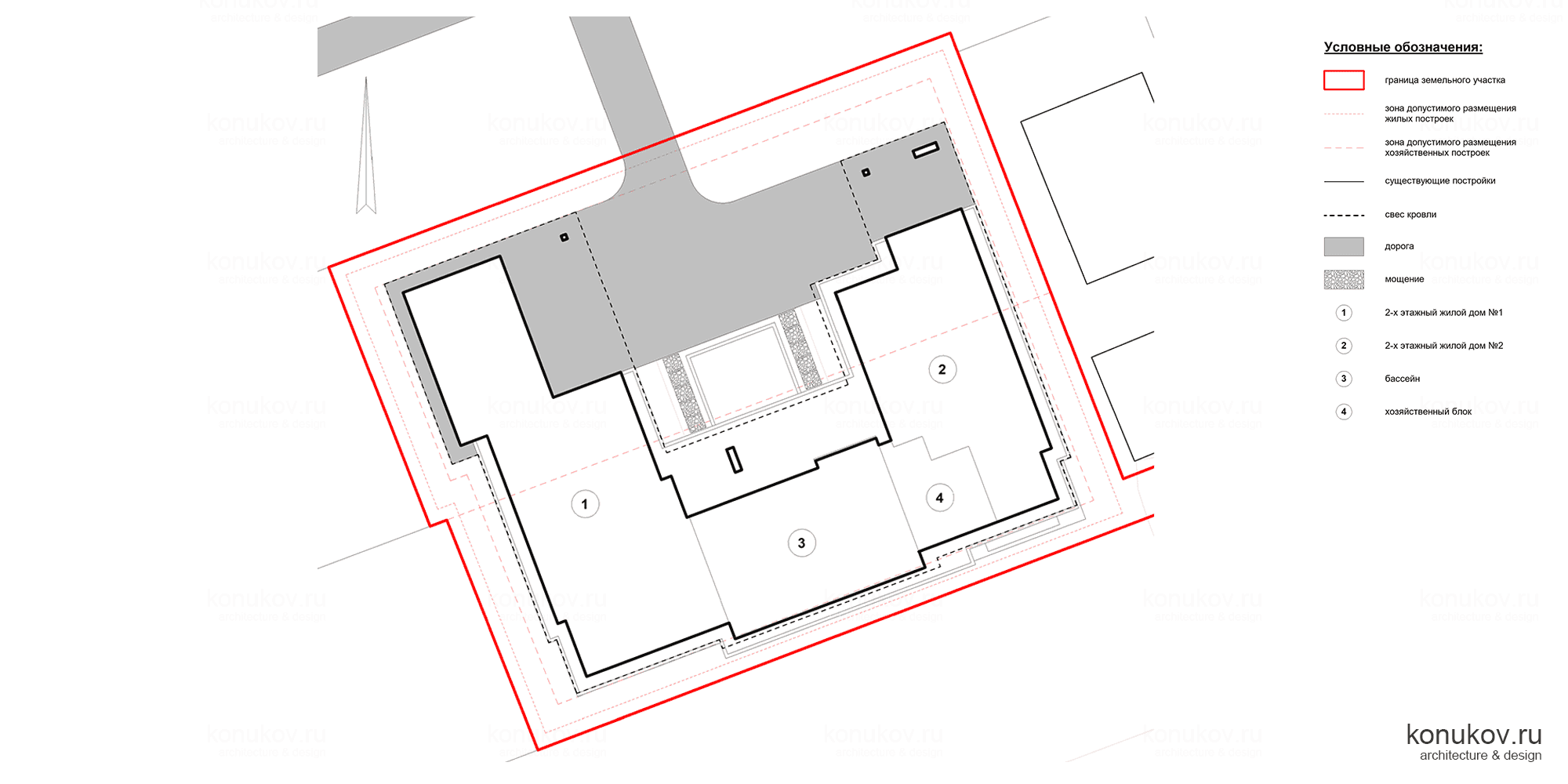
Генплан
1. 2-х этажный жилой дом №1. 2-х этажный жилой дом №2. бассейн. хозяйственный блок

План подвал
001 Техническое помещение бассейна 40.1 м2.

План 1 эт.
101 Тамбур 10.5 м2. 102 Гардеробная 6.2 м2. 103 Гардеробная 7.5 м2. 104 Холл 31.3 м2. 105 Туалет 3.9 м2. 106 Кабинет 18.8 м2. 107 Гостиная 90.0 м2. 108 Кладовая 8.5 м2. 109 Кладовая 9.2 м2. 110 Холл 13.8 м2. 111 Постирочная 20.4 м2. 112 Кладовая 5.0 м2. 113 Мастер-спальня 22.1 м2. 114 Гардеробная 7.8 м2. 115 Ванная 9.1 м2. 116 Мастер-спальня 20.8 м2. 117 Гардеробная 8.4 м2. 118 Ванная 10.0 м2. 119 Гараж 56.0 м2. 120 Кладовая 9.1 м2. 121 Кладовая садового инвентаря 9.1 м2. 122 Котельная 9.1 м2. 123 Тамбур 9.2 м2. 124 Гардеробная 7.5 м2. 125 Холл 14.9 м2. 126 Туалет 5.3 м2. 127 Кабинет 43.3 м2. 128 Гостиная 84.7 м2. 129 Постирочная 7.4 м2. 130 Коридор 6.8 м2. 131 Мастер-спальня 21.9 м2. 132 Ванная 11.3 м2. 133 Гардеробная 7.9 м2. 134 Кладовая 7.9 м2. 135 Котельная 7.9 м2. 136 Тамбур 10.7 м2. 137 Туалет 3.6 м2. 138 Раздевалка 5.9 м2. 139 Комната отдыха 40.1 м2. 140 Сауна 8.9 м2. 141 Хаммам 8.9 м2. 142 Бассейн 39.3 м2. 143 Мастерская 15.3 м2. 144 Кладовая 7.6 м2. 145 Кладовая садового инвентаря 5.7 м2. 146 Тамбур 5.0 м2. 147 Комната персонала 23.4 м2. 148 Туалет 3.8 м2.

План 2 эт.
201 Холл 17.1 м2. 202 Спальня 21.6 м2. 203 Спальня 21.5 м2. 204 Гардеробная 9.8 м2. 205 Ванная 14.0 м2. 206 Холл 12.7 м2. 207 Спальня 17.5 м2. 208 Спальня 17.5 м2. 209 Гардеробная 7.0 м2. 210 Ванная 10.7 м2.

Изометрия южная

Изометрия северная

Разрез 4-4

Разрез 1-1

Фасад 1

Фасад 2

Фасад 3

Фасад 4
