

















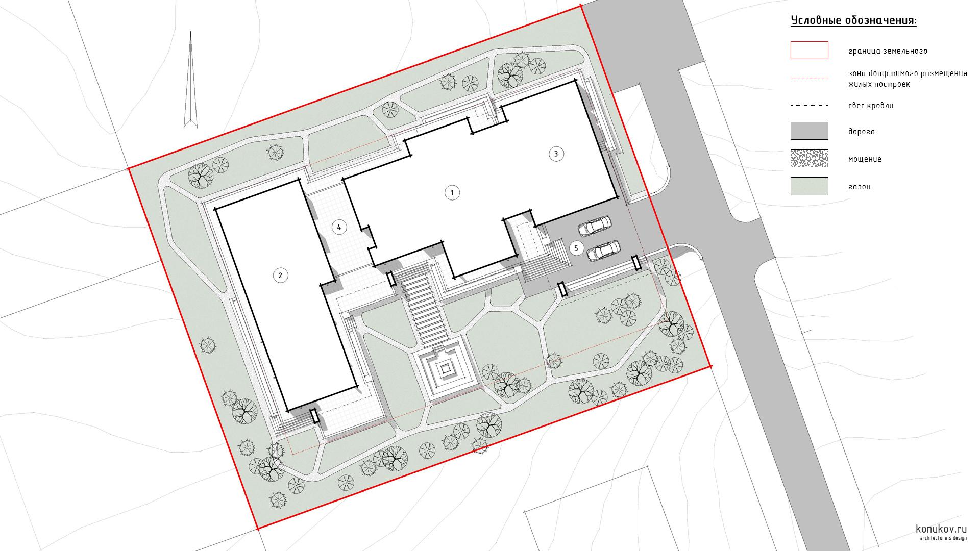
Генплан
1 Жилой дом. 2 Бассейн и гараж. 3 Навес на два машино-места. 4 Терраса.

План подвал
001 Лестница 2.6 кв.м. 002 Тех. помещение бассейна 133.9 кв.м.

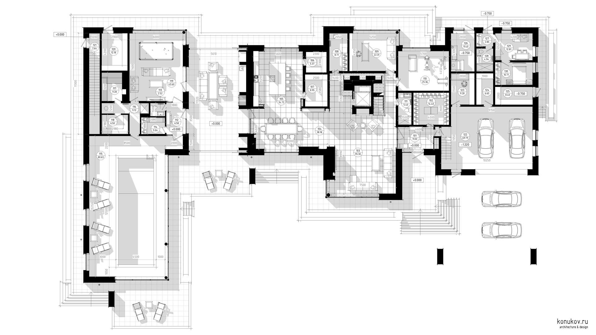
План 1 эт.
101 Тамбур 11.0 кв.м. 102 Гардеробная 14.4 кв.м. 103 Гостиная 95.3 кв.м. 104 Столовая 38.2 кв.м. 105 Кухня 34.7 кв.м. 106 Холодная кладовая 5.4 кв.м. 107 Кладовая 9.0 кв.м. 108 Постирочная 8.7 кв.м. 109 Кабинет 22.3 кв.м. 110 Спортзал 25.4 кв.м. 111 Туалет 5.4 кв.м. 112 Тамбур 6.6 кв.м. 113 Туалет 2.5 кв.м. 114 Раздевалка 5.0 кв.м. 115 Бассейн 80.6 кв.м. 116 Холл 9.1 кв.м. 117 Сауна 9.3 кв.м. 118 Хаммам 6.5 кв.м. 119 Комната отдыха 45.6 кв.м. 120 Кладовая мебели 12.2 кв.м. 121 Лестница 2.6 кв.м. 122 Гараж 69.8 кв.м. 123 Мастерская 9.3 кв.м. 124 Кладовая 6.7 кв.м. 125 Кладовая садового инвентаря 8.4 кв.м. 126 Котельная 11.4 кв.м. 127 Тамбур 2.9 кв.м. 128 Ванная 4.9 кв.м. 129 Комната персонала 12.8 кв.м. 130 Спальня 10.7 кв.м. 201 Холл 32.3 кв.м.

План 2 эт.
202 Спальня 21.7 кв.м. 203 Гардеробная 5.4 кв.м. 204 Ванная 5.4 кв.м. 205 Кладовая 6.0 кв.м. 206 Спальня 30.1 кв.м. 207 Ванная 8.0 кв.м. 208 Гардеробная 7.5 кв.м. 209 Гостевая спальня 20.6 кв.м. 210 Гардеробная 5.6 кв.м. 211 Ванная 4.9 кв.м. 212 Спальня 29.6 кв.м. 213 Гардеробная 8.2 кв.м. 214 Ванная 8.2 кв.м.

Изометрия юго-восточная

Изометрия северо-восточная

Изометрия юго-западная

Разрез 1-1

Разрез 2-2

Разрез 3-3

Разрез 4-4

Фасад 1

Фасад 2

Фасад 3

Фасад 4
