



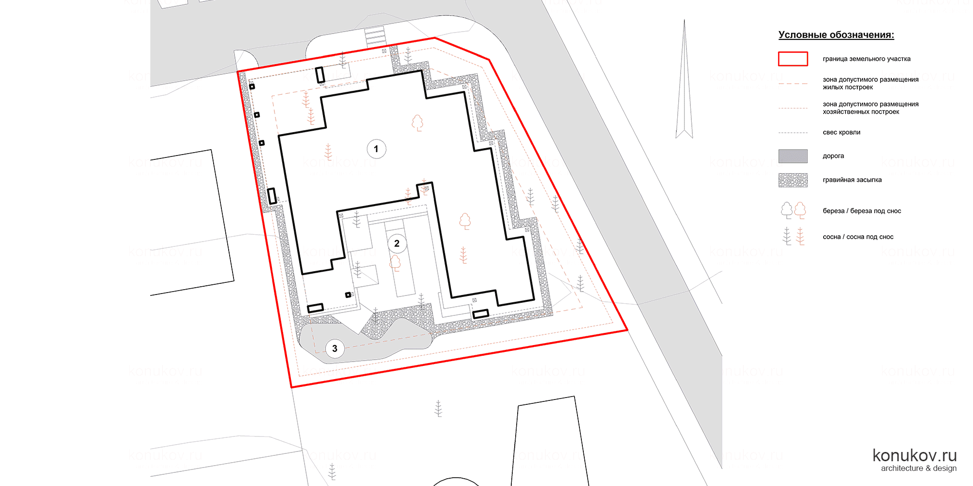
Генплан
1. Одноэтажный жилой дом. 2. Открытый бассейн. 3. Пруд

План 1 эт.
101 Прихожая 7.9м2. 102 Гардеробная 4.1м2. 103 Гардеробная 4.1м2. 104 Мастерская 7.7м2. 105 Гостиная 35.6м2. 106 Кухня-столовая 28.1м2. 107 Кладовая 3.0м2. 108 Холл 18.6м2. 109 Туалет 2.9м2. 110 Спальня 15.4м2. 111 Гардеробная 3.7м2. 112 Ванная 3.6м2. 113 Спальня 15.4м2. 114 Гардеробная 4.0м2. 115 Ванная 3.5м2. 116 Коридор 9.3м2. 117 Постирочная 6.9м2. 118 Мастер-спальня 18.0м2. 119 Ванная 7.3м2. 120 Гардеробная 5.5м2. 121 Котельная 5.9м2. 122 Кладовая садового инвентаря 4.5м2. 123 Холл 7.4м2. 124 Туалет 2.2м2. 125 Кладовая 3.5м2. 126 Салон 16.6м2.

Изометрия юго-восточная

Изометрия северо-восточная

Разрез 2-2

Разрез 1-1

Разрез 3-3

Фасад 3

Фасад 2

Фасад 1

Фасад

