






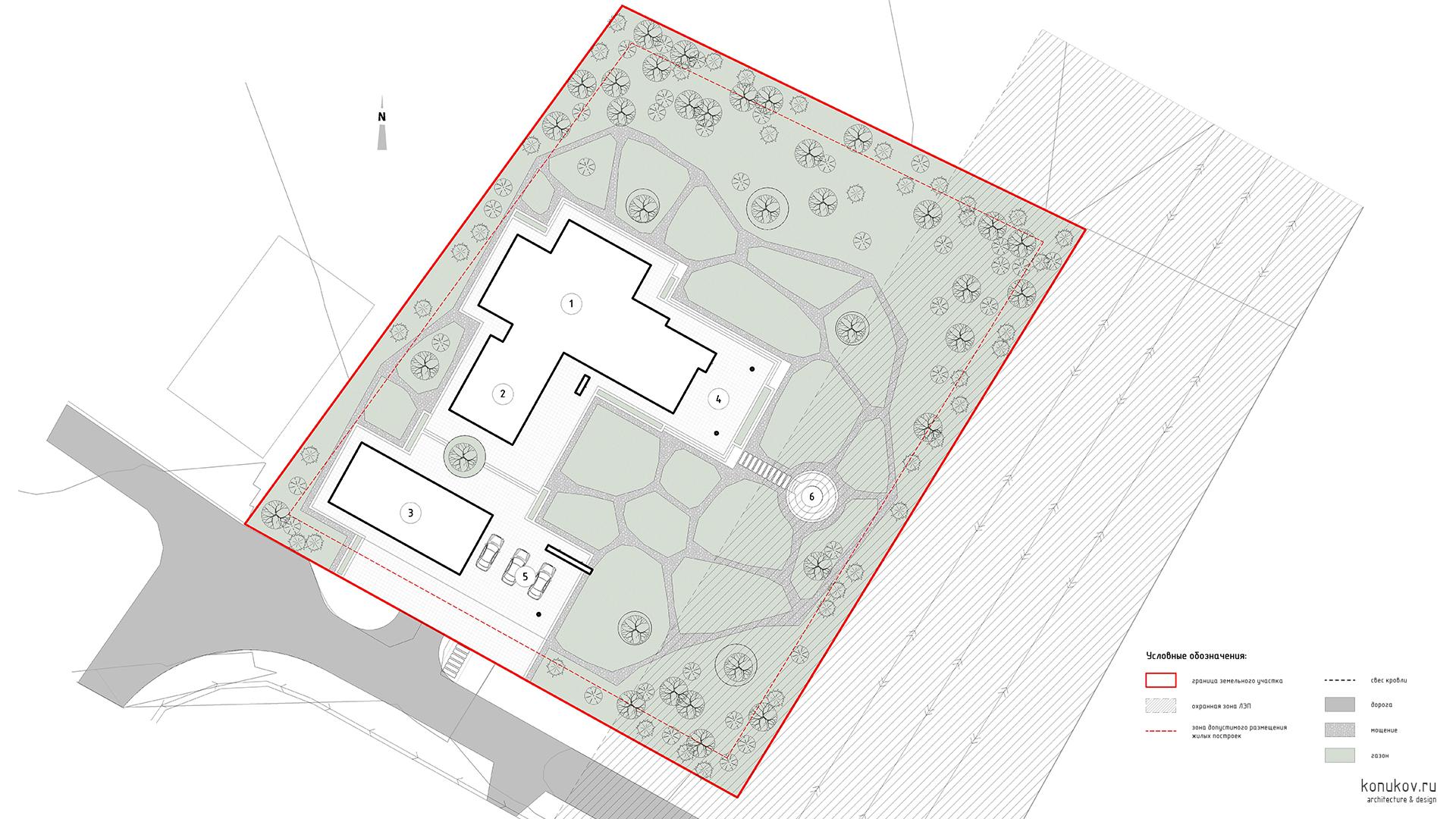
Генплан
1 дом. 2 баня. 3 гараж. 4 открытая терраса. 5 навес на три машиноместа. 6 жаровня.

План
101 Тамбур 13.8 м² 102 Гардероб 6.0 м² 103 Кладовая 4.5 м² 104 Холл 16.7 м² 105 Гостиная 85.8 м² 106 Кладовая 4.8 м² 107 Холодная кладовая 4.0 м² 108 Туалет 3.8 м² 109 Тамбур 4.2 м² 110 Мастер-спальня 23.7 м² 111 Гардероб 8.6 м² 112 Ванная 10.8 м² 113 Коридор 5.2 м² 114 Постирочная 5.0 м² 115 Ванная 4.5 м² 116 Спальня 18.3 м² 117 Спальня 20.9 м² 118 Котельная 10.8 м² 119 Холл 6.9 м² 120 Комната отдыха 38.5 м² 121 Помывочная 15.0 м² 122 Баня 12.1 м²

Изометрия северо-восточная

Изометрия

Изометрия юго-восточная

Разрез 2-2

Разрез 1

Фасад 1

Фасад 2

Фасад 4

Фасад 3

КЖ


