Дом на склоне оврага

Калуга

Современный стиль

ТЭП. S участка: 2424 м². S застройки: 598 м². S общая: 646 м². S помещений: 619 м².

Бассен, гарж, с подвалом, спа.

Дом на склоне оврага
0 / 764 кб
Дом на склоне оврага
0 / 725 кб
Дом на склоне оврага
0 / 750 кб
Дом на склоне оврага
0 / 834 кб
Дом на склоне оврага
0 / 860 кб
Дом на склоне оврага
0 / 807 кб
Дом на склоне оврага
0 / 666 кб
Дом на склоне оврага
0 / 866 кб
Дом на склоне оврага
0 / 857 кб
Дом на склоне оврага
0 / 841 кб

Генплан

Генплан
0 / 348 кб

План

001 Холл 21.64м² 002 Бассейн 75.66м² 003 Тех. помещение 5.00м² 004 Кладовая 4.20м² 005 Душевая 2.70м² 006 Баня 11.69м² 007 Помывочная 2.37м² 008 Туалет 3.75м² 009 Серверная 3.75м² 010 Спортзал 25.96м² 011 Инвентарная 3.60м² 012 Кладовая 3.69м² 013 Кладовая 11.23м²

План
0 / 125 кб

План

101 Тамбур 11.3м² 102 Гардероб 7.2м² 103 Кладовая 5.3м² 104 Гараж 52.5м² 105 Холл 28.8м² 106 Постирочная 9.1м² 107 Кухня 30.6м² 108 Кладовая 6.6м² 109 Холодная кладовая 4.6м² 110 Гостиная 52.3м² 111 Библиотека 24.5м² 112 Туалет 3.9м² 113 Коридор 5.4м² 114 Мастер-спальня 21.5м² 115 Мастер-спальня 21.5м² 116 Гардероб 11.0м² 117 Ванная 10.7м² 118 Кладовая садового инвентаря 8.0м² 119 Котельная 7.9м²

План
0 / 220 кб

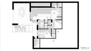
План

201 Холл 28.42м² 202 Кабинет 15.28м² 203 Кабинет 15.90м² 204 Гостевая спальня 18.45м² 205 Гардероб 3.96м² 206 Ванная 3.96м² 207 Кладовая 4.40м² 208 Детская спальня 22.09м² 209 Гардероб 6.84м² 210 Ванная 8.92м²

План
0 / 100 кб

Изометрия

Изометрия
0 / 298 кб

Изометрия

Изометрия
0 / 267 кб

Изометрия

Дом на склоне оврага
0 / 307 кб
Дом на склоне оврага
0 / 349 кб

Разрез 1-1

Разрез 1-1
0 / 92 кб

Разрез 2-2

Разрез 2-2
0 / 64 кб

Разрез 3-3

Разрез 3-3
0 / 105 кб

Фасад 1

Фасад 1
0 / 94 кб

Фасад 2

Фасад 2
0 / 133 кб

Фасад 3

Дом на склоне оврага
0 / 125 кб
Дом на склоне оврага
0 / 112 кб
Дом на склоне оврага
0 / 290 кб