



Генплан
1. Жилой дом. 2.Бассейн. 3.Терраса

План подвал подвал
001 Тамбур 3.1 м2. 002 Техническое помещение бассейна 58.7м2.

План 1 эт. 1 эт.
101 Прихожая 12.4м2. 102 Холл 65.6м2. 103 Гардеробная 26.5м2. 104 Кладовая 11.3м2. 105 Гараж 68.0м2. 106 Туалет 3.8м2. 107 Гостиная 121.8м2. 108 Кладовая 6.2м2. 109 Постирочная 11.5м2. 110 Прихожая 7.1м2. 111 Туалет 4.5м2. 112 Комната персонала 11.5м2. 113 Спальня 8.8м2. 114 Спальня 9.4 115 Коридор 5.2м2. 116 Спальня 24.0м2. 117 Гардеробная 13.7м2. 118 Ванная 11.8м2. 119 Холл 8.2м2. 120 Раздевалка 5.6м2. 121 Туалет 2.8м2. 122 Коридор 18.6м2. 123 Комната отдыха 20.2м2. 124 Парная 11.2м2. 125 Бассейн 57.2м2. 127 Котельная 10.4м2. 128 Кладовая садового инвентаря 9.1м2.

План 2 эт. 2 эт.
201 Холл 41.4м2. 202 Тамбур 3.2м2. 203 Спальня 20.4м2. 204 Гардеробная 8.1м2. 205 Ванная 10.3 м2. 206 Тамбур 5.1м2. 207 Спальня 16.0м2. 208 Ванная 5.9м2. 209 Спальня 22.1м2. 210 Гардеробная 8.3м2. 211 Спальня 22.1м2. 212 Гардеробная 9.5м2. 213 Ванная 12.1м2. 214 Игровая 32.8м2. 215 Коридор 21.1м2. 216 Гардеробная 22.7м2. 217 Гардеробная 17.3м2. 218 Сейфовая 4.1м2. 219 Кабинет 19.9м2. 220 Ванная 15.5м2. 221 Мастер-спальня 37.4м2.

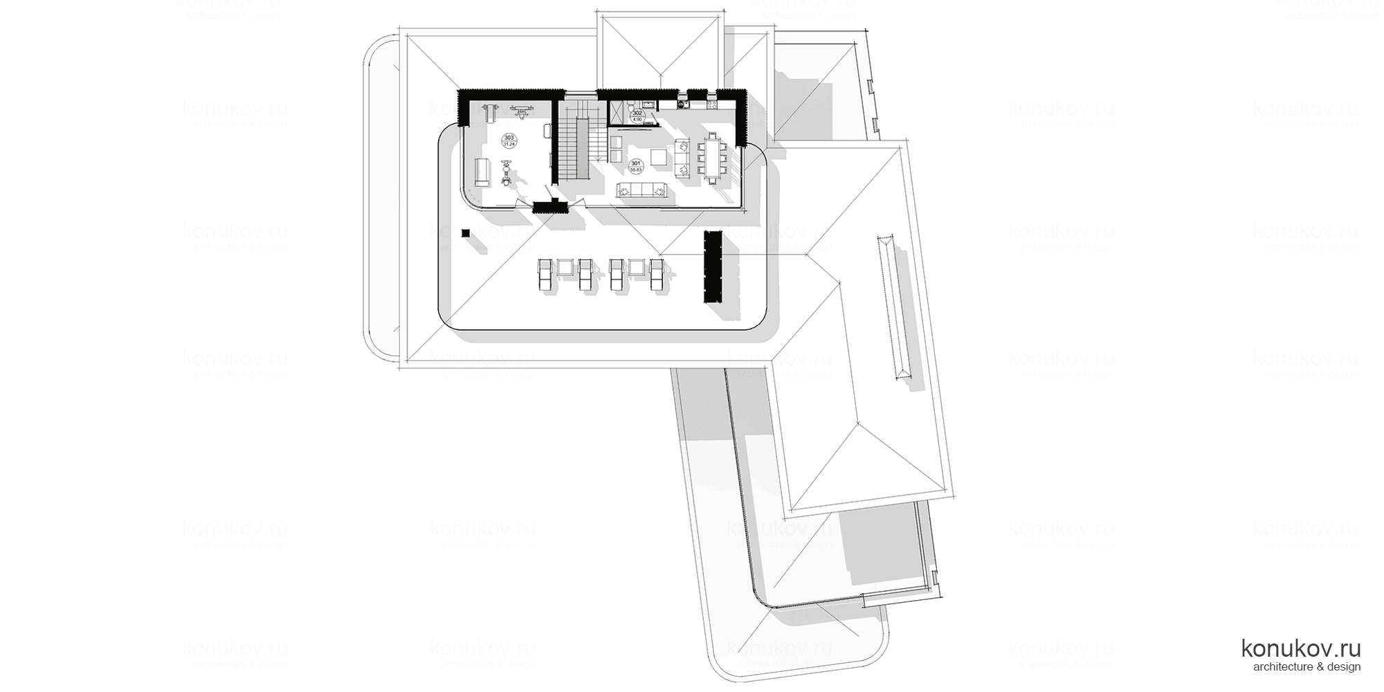
План 3 эт.
301 Комната отдыха 55.8м2. 302 Туалет 4.9м2. 303 Спортивный зал 31.2м2.

Изометрия северо-восток

Изометрия юго-запад

Разрез 1-1

Разрез 2-2

Разрез 3-3

Разрез 4-4

Фасад 1

Фасад 2

Фасад 3

Фасад 4

