


Генплан
1. жилой дом. 2. Навес на 4 м/места

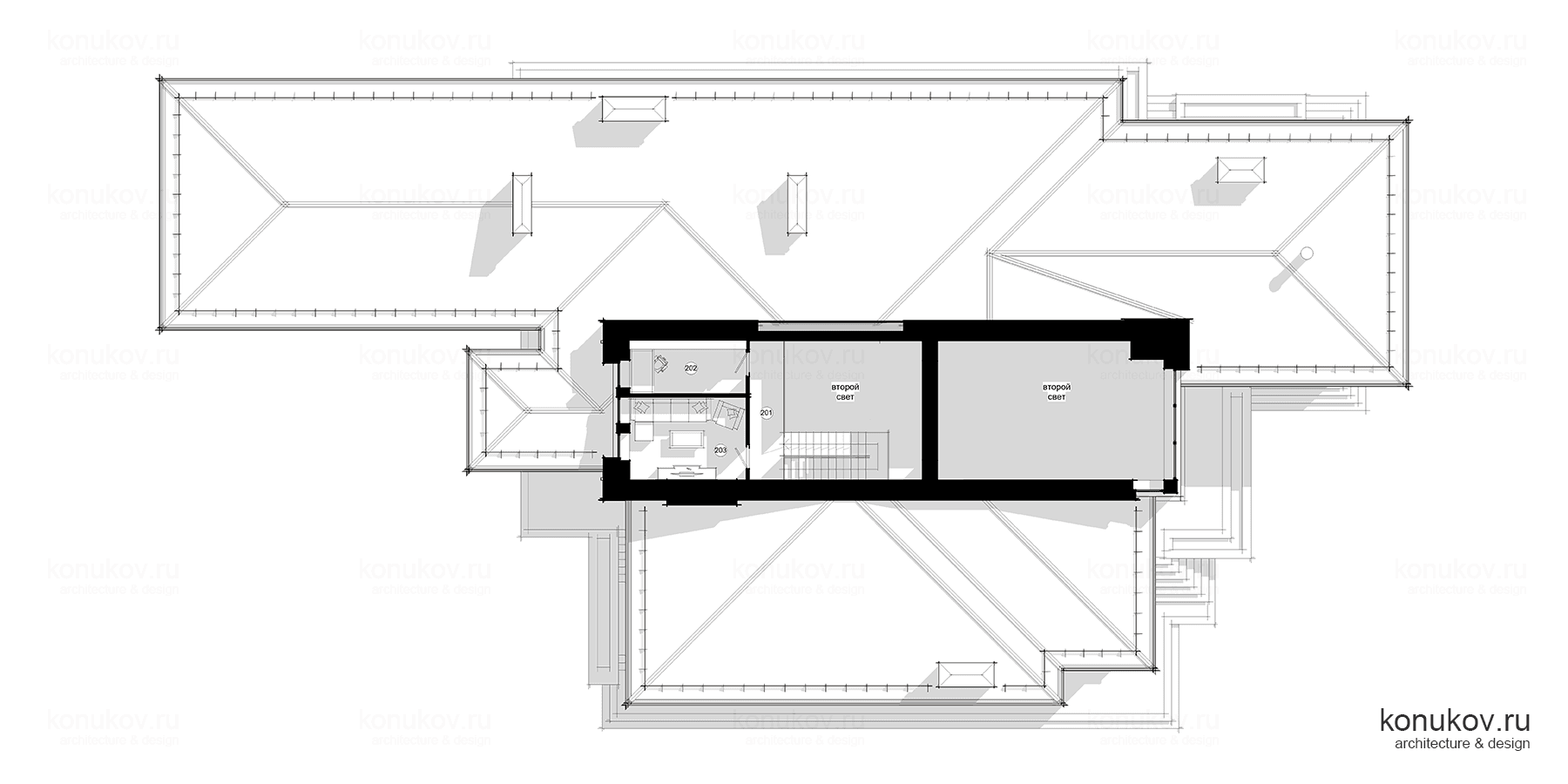
План
201 Холл 7.8м2. 202 Кабинет 10.1м2. 203 Игровая 15.7м2.

План
101 Тамбур 9.4м2. 102 Гардеробная 7.9м2. 103 Гардеробная 3.9м2. 104 Туалет 3.9м2. 105 Холл 39.1м2. 106 Гостиная 51.3м2. 107 Кухня-столовая 35.1м2. 108 Кладовая 2.9м2. 109 Коридор 15.9м2. 110 Кабинет 10.6м2. 111 Гардеробная 4.1м2. 112 Гостевая спальня 12.3м2. 113 Ванная 3.5м2. 114 Кладовая 7.3м2. 115 Постирочная 9.5м2. 116 Спа 21.4м2. 117 Помывочная 6.2м2. 118 Сауна 8.5м2. 119 Комната отдыха 19.2м2. 120 Гардеробная 8.9м2. 121 Ванная 8.6м2. 122 Спальня 17.9м2. 123 Коридор 4.1м2. 124 Детская спальня 19.4м2. 125 Ванная 8.6м2. 126 Гардеробная 8.6м2. 127 Гардеробная 9.8м2. 128 Ванная 9.8м2. 129 Мастер-спальня 20.1м2. 130 Котельная 6.3м2. 131 Кладовая 10.6м2.

Изометрия

Изометрия

Разрез 2-2

Разрез 1-1

Фасад

Фасад

Фасад

Фасад

