


Генплан
1. Жилой дом. 2. Гараж. 3. Спа. 4. Детская площадка и вольер для собак

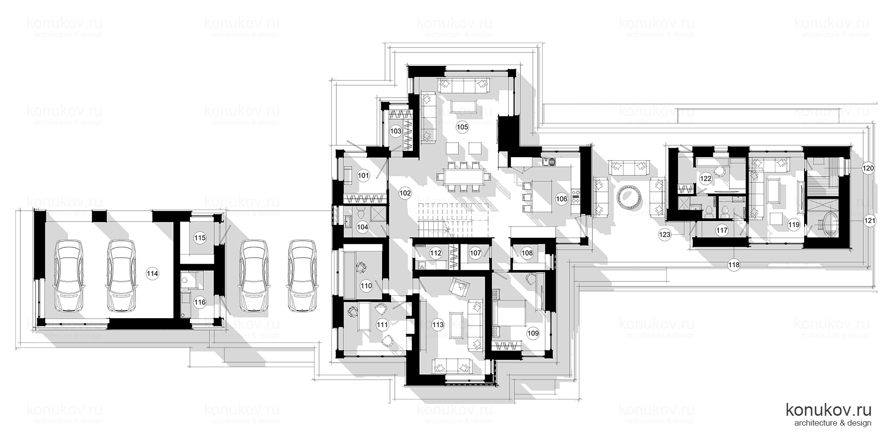
План 1 эт.

План 2 эт.

Изометрия

Изометрия

Разрез 1-1

Разрез 2-2

Фасад 1

Фасад 2

Фасад 3

Фасад 4

Москва
Юсония
ТЭП. Площадь участка 2 006 м2, Площадь застройки 880 м2, Общая площадь дома 279 м2, Суммарная площадь помещений дома 269 м2, Общая площадь гаража 69 м2, Суммарная площадь помещений гаража 61 м2, Общая площадь спа 47 м2, Суммарная площадь помещений спа 45 м2,. S участка: 2006 м². S застройки: 880 м².



Генплан
1. Жилой дом. 2. Гараж. 3. Спа. 4. Детская площадка и вольер для собак

План 1 эт.

План 2 эт.

Изометрия

Изометрия

Разрез 1-1

Разрез 2-2

Фасад 1

Фасад 2

Фасад 3

Фасад 4
