



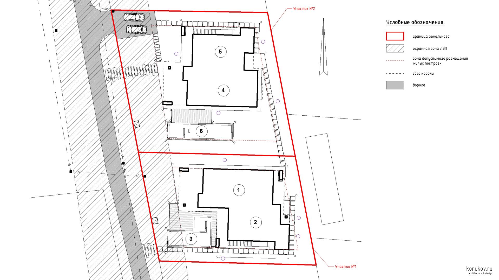
Генплан
1. 2-х этажный жилой дом №1. 2 .Крытая терраса. 3.Открытый бассейн. 2-х этажный жилой дом №2. 4. Орытая терраса. 5. Открытый бассейн

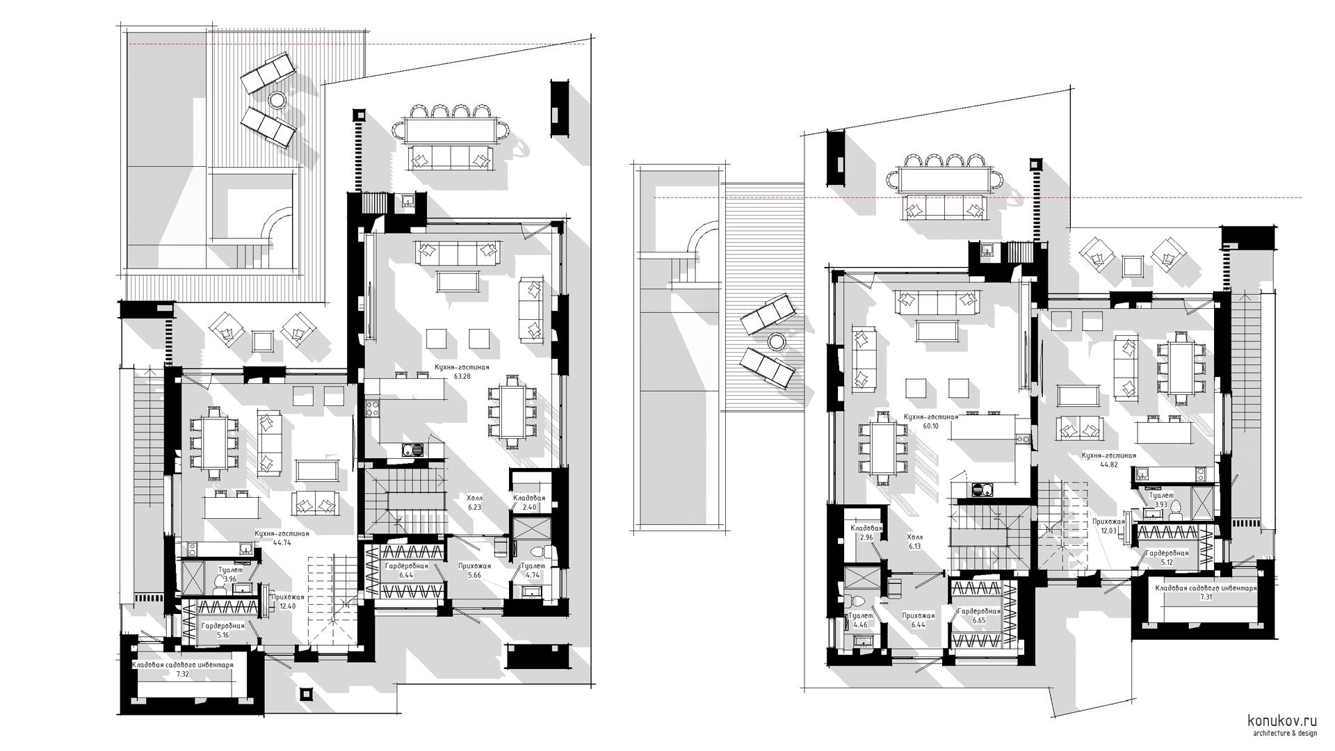
План 1 эт.

План 2 эт.

План цокольный эт.

Изометрия юго-западная

Изометрия юго-восточная

Разрез 1-1

Разрез 2-2

Разрез 1-1

Разрез 2-2

Фасад 1. Дом 2

Фасад 1. Дом 1

Фасад 2. Дом 1

Фасад 3. Дом 1

Фасад 4. Дом 2

Фасад 3. Дом 2
