


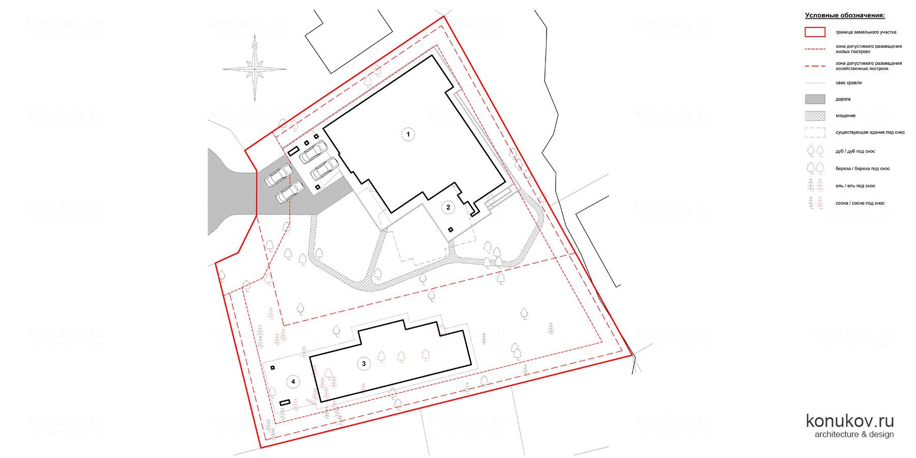
Генплан
1. Жилой дом. 2. Терраса. 3. Жилой дом. 4. Навес для машин

План 1 эт.
101 Тамбур 8.2м2. 102 Гардеробная 6.4м2. 103 Туалет 5.3м2. 104 Холл 14.8 105 Гостиная 30.8м2. 106 Кухня-столовая 33.6м2. 107 Постирочная 6.9м2. 108 Кладовая 5.3м2. 109 Коридор 12.0м2. 110 Тамбур 4.8м2. 111 Мастер-спальня 20.3м2. 112 Гардеробная 6.0м2. 113 Ванная 9.3м2. 114 Кабинет 10.9м2. 115 Спальня 17.9 116 Гардеробная 3.3 117 Ванная 4.8м2. 118 Тамбур 2.6м2. 119 Спальня 17.9м2. 120 Гардеробная 3.3м2. 121 Ванная 4.8м2. 122 Гараж 27.5м2. 123 Кладовая 5.1м2. 124 Котельная 6.1м2.

Изометрия южная

Изометрия северная

Разрез 2-2

Разрез 1-1

Фасад 3

Фасад 1

Фасад 2

Фасад 4

КЖ



АР



Генплан
Пятно застройки: 27,5 м х 25,5 м. Отступы от границ участка 3м. Отступ от дороги минимум 5 м.

Тип фундамента
Ленточный фундамент. Перед началом строительных работ нужно выполнить геологию.

Наружные сети (нвк)
Для всех наружных сетей мы оставляем под бетоном закладные трубы D160. В них потом прокидываем всё, что хотим: электричество, слаботочку. полив и т.д. Одну напорную трубу закладываем на уровень промерзания, для воды.

8,8 млн.р.

V кладки: 127 куб .м.S окон: 129 кв .мS кровли: 432 кв .м.S от. фасадов: 321 кв. м.

