


Генплан
1 Жилой дом 2. Спа

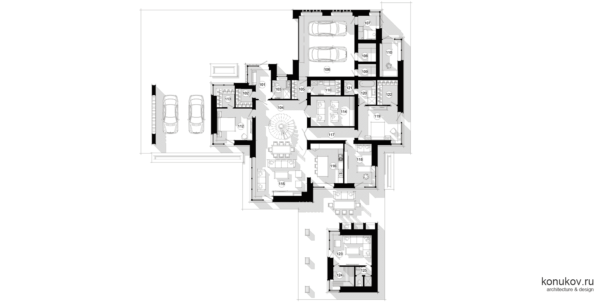
План

План

Изометрия

Изометрия

Разрез 1-1

Разрез 2-2

Фасад

Фасад

Фасад

Фасад


Москва
Юсония
ТЭП. Площадь участка 1 534 м2. Площадь застройки 512м2. Общая площадь дома 377 м2. Общая площадь бани 27 м2. Суммарная площадь помещений дома 345 м2. Суммарная площадь помещений гаража 26 (0,3) м2.. S участка: 1534 м². S застройки: 512 м².



Генплан
1 Жилой дом 2. Спа

План

План

Изометрия

Изометрия

Разрез 1-1

Разрез 2-2

Фасад

Фасад

Фасад

Фасад

