Вид с дороги


Вид со двора



План
101 Тамбур 20.3 кв.м. 103 Гараж 53.8 кв.м. 104 Моечная 4.7 кв.м. 105 Электрощитовая 2.6 кв.м. 107 Постирочная 11.4 кв.м. 108 Холл 20.5 кв.м. 109 Гостиная 43.5 кв.м. 110 Туалет 3.5 кв.м. 111 Кухня-столовая 42.0 кв.м. 112 Кладовая 7.9 кв.м. 113 Кабинет 22.2 кв.м. 115 Туалет 4.8 кв.м. 116 Комната отдыха 43.6 кв.м. 118 Кладовая садового инвентаря 7.2 кв.м. 119 Котельная 9.3 кв.м. 120 Терраса 140.0 кв.м.

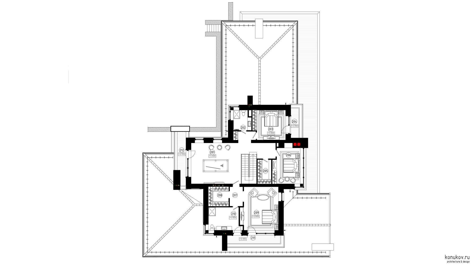
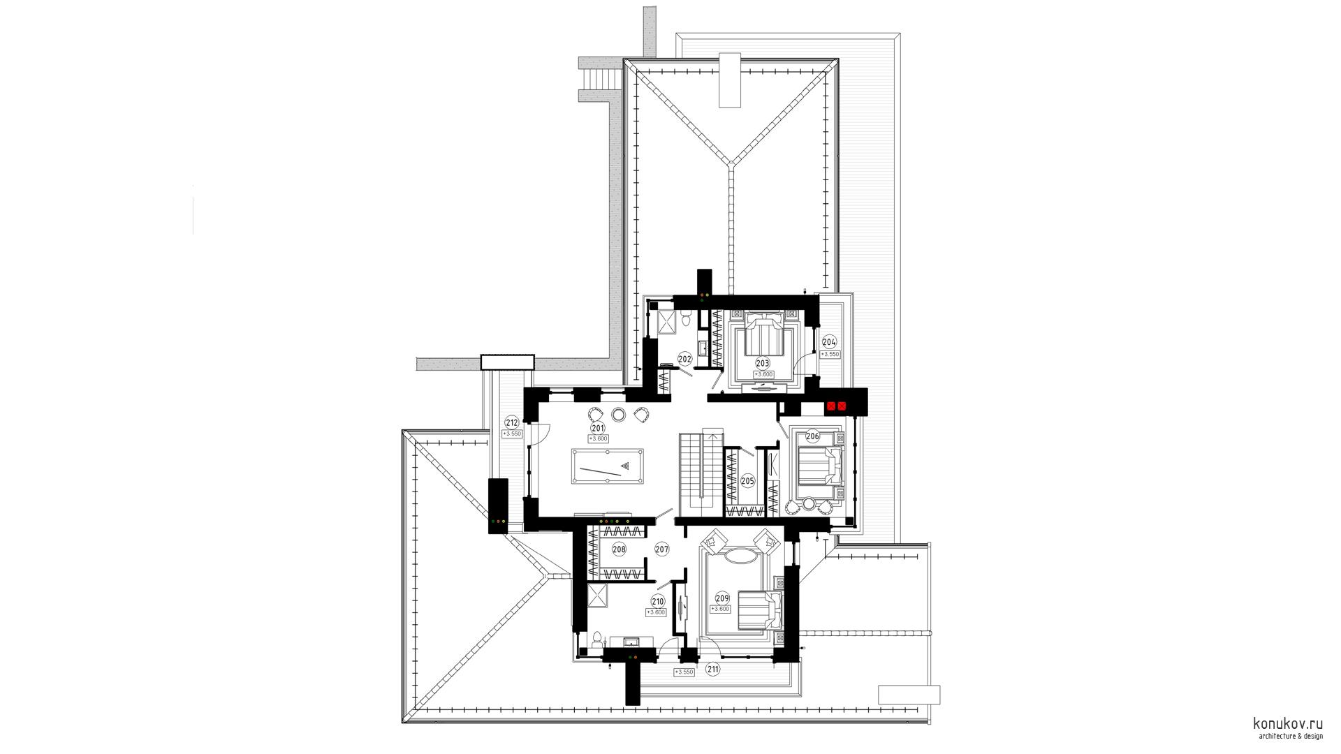
План
201 Бильярдная 52.2 кв.м. 202 Ванная 6.5 кв.м. 203 Спальня 18.1 кв.м. 204 Балкон 6.0 кв.м. 205 Кладовая 6.3 кв.м. 206 Спальня 18.6 кв.м. 207 Тамбур 4.9 кв.м. 208 Гардероб 7.6 кв.м. 209 Мастер-спальня 31.4 кв.м. 210 Ванная 14.2 кв.м. 211 Балкон 10.9 кв.м. 212 Балкон 8.2 кв.м.

Изометрия

Изометрия

Разрез 1-1

Разрез 2-2

Фасад 2

Фасад 3

Фасад 4

Фасад 1
