Воронежская область, район Рамонский, д Новоподклетное
Современный стиль
ТЭП. S участка: 1500 кв.м. S застройки: 648 кв.м. S общая: 456 кв.м. S помещений: 433 кв.м.





Генплан
1 Дом. 2 Баня. 3 Открытая терраса. 4 Навес на два машиноместа. 5 Терраса закрытая

Изометрия западная

Изометрия северная

Изометрия восточная

Изометрия южная

План 1 эт.
101 Тамбур 9.3м² 102 Холл 27.7м² 103 Гардероб 6.6м² 104 Кладовая 5.9м² 105 Балкон 7.3м² 106 Кладовая 8.8м² 107 Кухня 11.2м² 108 Кладовая 4.5м² 109 Гостиная 76.1м² 110 Туалет 4.8м² 111 Коридор 8.4м² 112 Спальня 15.8м² 113 Спальня 15.8м² 114 Гардероб 4.2м² 115 Ванная 6.1м² 116 Мастер-спальня 21.3м² 117 Тамбур 3.4м² 118 Ванная 13.1м² 119 Гардероб 8.0м² 120 Гардероб 18.7м² 121 Котельная 6.4м² 122 Кладовая 13.7м² 123 Тамбур 5.0м² 124 Туалет 3.0м² 125 Комната отдыха 27.7м² 126 Помывочная 18.3м² 127 Хаммам 6.4м² 128 Кладовая 4.0м² 129 Баня 7.8м² 130 Топочная 5.5м² 131 Терраса 35.3м²

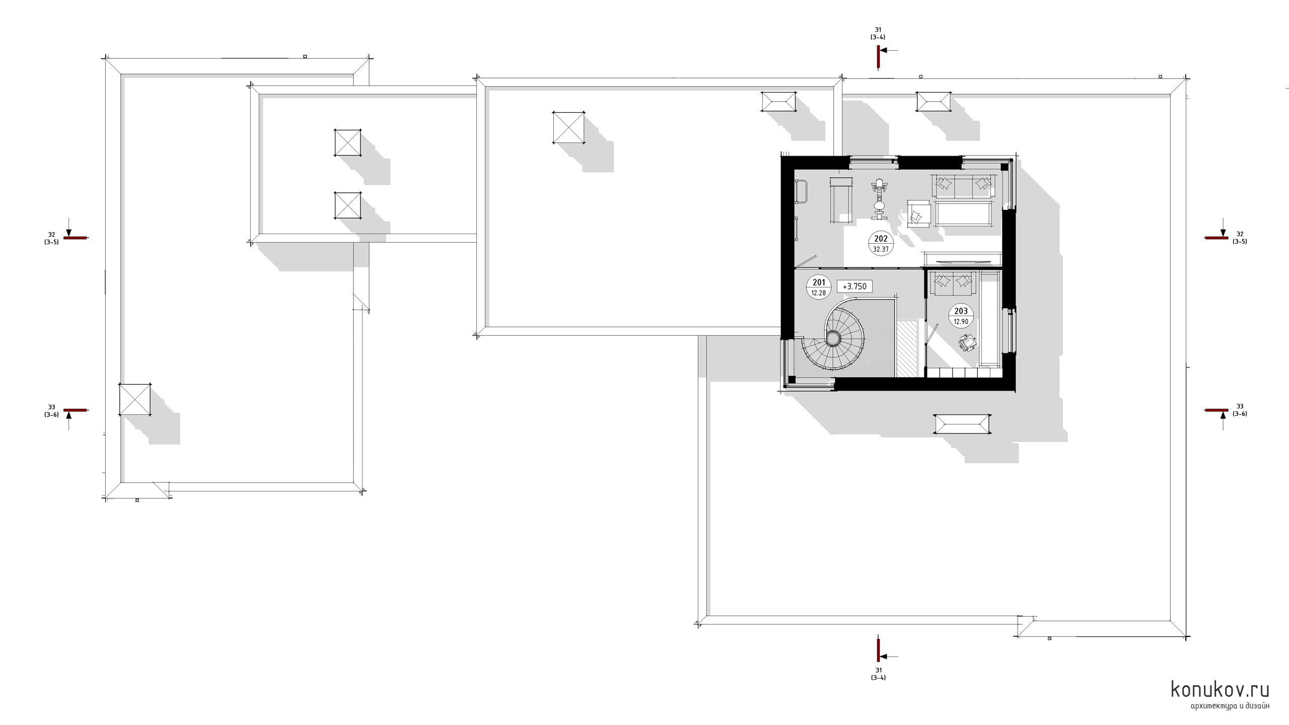
План 2 эт.
201 Холл 12.3м² 202 Игроваая 32.4м² 203 Кабинет 12.9м²

Разрез 1-1

Разрез 2-2

Разрез 3-3

Фасад 1

Фасад 2

Фасад 3

Фасад 4

Проектная группа
ГИП: Конюков А.А.
Ведущий архитектор: Конюкова Е.А.
Регион: Воронежская область, район Рамонский, д Новоподклетное
Контакты:
+7 (926) 819-58-53 Конюков Андрей - архитектор. WhatsApp, Telegram или MAX
Москва. Санкт-Петербург. Нижний Новгород. Воронеж. Калуга. Сочи. Анапа. Канзас. Рязань. Краснодар. Таганрог. Севастополь. Иваново. Тюмень. Орёл. Самара. Симферополь. Саранск.
2010-2024